Vragen of afspraak maken?

Stuur ons een bericht op Whatsapp

Bladel

Helleneind 9A

Omschrijving

Aan een mooie brede straat nabij het gezellige centrum van Bladel, op een perceel van 558 m² ligt deze fors uitgebouwde en daarmee verrassend ruime vrijstaand geschakelde woning met hybride warmtepomp en energielabel A. De woning beschikt over een slaap- en badkamer op de begane grond, alsook 3 slaapkamers en een 2e badkamer op de verdieping. Bovendien heeft de woning een brede oprit met carport, riant aangebouwde garage en een grote, privacy biedende achtertuin met terrasoverkapping. De woning en garage bieden vele mogelijkheden voor bijvoorbeeld kantoor of beroep aan huis of voor het realiseren van een mantelzorgwoning.

Indeling:

Begane grond:

Keurige entreehal met een leisteen tegelvloer, vernieuwde meterkast (7 groepen en 2 aardlekschakelaars), toegang tot de woonkamer en trapopgang naar de 1e verdieping.

Royale L-vormige woonkamer met een leisteen tegelvloer, grotendeels spachtelputzwanden, stucwerkplafond met sierlijst, praktische trapkast en fraaie erker aan de voorzijde.

Grote leefkeuken aan de achterzijde van de woning met een leisteen tegelvloer, houten plafond met inbouwspots en 3 solartubes voor extra lichtintval, airconditioning (verwarmen en koelen), schouw met potkachel (ter overname) en toegang tot de diepe achtertuin door middel van een schuifpui en separate loopdeur. De nette keukeninrichting in hoekopstelling is voorzien van een keramische kookplaat, afzuigkap, koelkast, vriezer, vaatwasser, combi-oven en een granieten aanrechtblad.

Via een portaal is er toegang tot de oprit met carport, zodat je vanonder de carport droog binnen stapt in de woning.

Een 2e portaal biedt toegang tot de slaap- en badkamer en beschikt over een volledig betegelde toiletruimte met wandcloset en fonteintje.

Aan de voorzijde van de woning ligt een grote slaapkamer met een leisteen tegelvloer, spachtelputzwanden, stucwerkplafond met inbouwspots en een vaste 2-deurs kastenwand. Deze slaapkamer kan uiteraard ook prima fungeren als speelkamer of werkkamer.

Volledig betegelde badkamer/wasruimte voorzien van een inloopdouche, wastafel, wasmachine-aansluiting en opstelling van de hybride warmtepomp.

1e verdieping:

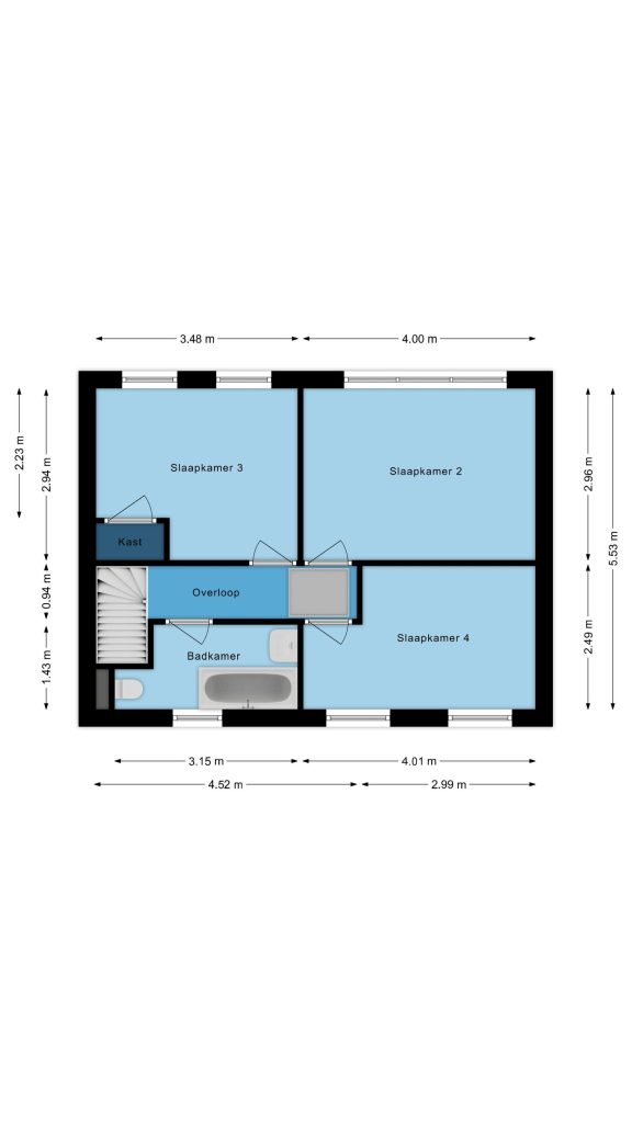
Overloop met vloerbedekking en toegang tot 3 slaapkamers en een 2e badkamer.

Drie prima slaapkamers welke allen zijn voorzien van een laminaatvloer, stucwerkwanden en een MDF-plafond. Twee slaapkamers beschikken over airconditioning ten behoeve van verwarmen en koelen.

Volledig betegelde 2e badkamer voorzien van een ligbad-/douchecombinatie, wandcloset met daarboven kastruimte, wastafel en een designradiator.

2e verdieping:

Middels een vlizotrap bereikbare bergzolder over de volle breedte van de woning met een novilonvloer.

Exterieur:

Onderhoudsvriendelijk aangelegde voortuin met sierbestrating, oprit met carport en ruim voldoende parkeergelegenheid voor meerdere auto’s.

Grote aangebouwde garage met een extra groepenkast, smeerput en openslaande deuren met toegang tot de oprit en carport. Vanuit de achtertuin is er een luik met toegang tot een grote vliering. De grote garage is ideaal voor eventueel hobby of beroep aan huis.

Riante, privacy biedende achtertuin met een groot gazon, sierbestrating, houten berging met grondwaterput en opstelling van de grondwaterpomp ten behoeve van de beregeningsinstallatie, houtopslag en achterom met poort.
Er is voldoende ruimte om eventueel een mantelzorgwoning bij de woning te realiseren.

Algemeen:
– bouwjaar 1962, in 1995 en 2004 uitgebouwd.
– perceeloppervlakte 558 m².
– inhoud 765 m³.
– gebruiksoppervlakte wonen 152 m².
– overige inpandige ruimte 42 m².
– gebouwgebonden buitenruimte 38 m².
– externe bergruimte 13 m².
– de woning is voorzien van dak-, spouwmuur- en vloerisolatie.
– de woning is voorzien van houten en kunststof kozijnen met isolerende en HR++ beglazing.
– verwarming en warmwatervoorziening door middel van een hybride warmtepomp (bouwjaar 2025).
– de begane grond is nagenoeg volledig voorzien van vloerverwarming.
– de woning is voorzien van 18 zonnepanelen.
– uitstekende ligging aan een mooie brede straat met gevarieerde bebouwing op loopafstand van de centrumvoorzieningen.

Kenmerken

  • Woonoppervlakte: 152 m2
  • Perceeloppervlakte: 558 m2
  • Slaapkamers: 4 kamers
  • Bouwjaar: 1962

Plattegrond (7)

Kenmerken

Overdracht

  • Woonoppervlakte: 152 m2
  • Perceeloppervlakte: 558 m2
  • Inhoud: 765 m3
  • Status: Te koop

Bouw

  • Ligging: In centrum, In woonwijk, ,
  • Kamers: 6
  • Slaapkamers: 4 kamers
  • Soort woning: Eengezinswoning
  • Type: Geschakelde woning
  • Type dak: Zadeldak

Omschrijving

Aan een mooie brede straat nabij het gezellige centrum van Bladel, op een perceel van 558 m² ligt deze fors uitgebouwde en daarmee verrassend ruime vrijstaand geschakelde woning met hybride warmtepomp en energielabel A. De woning beschikt over een slaap- en badkamer op de begane grond, alsook 3 slaapkamers en een 2e badkamer op de verdieping. Bovendien heeft de woning een brede oprit met carport, riant aangebouwde garage en een grote, privacy biedende achtertuin met terrasoverkapping. De woning en garage bieden vele mogelijkheden voor bijvoorbeeld kantoor of beroep aan huis of voor het realiseren van een mantelzorgwoning.

Indeling:

Begane grond:

Keurige entreehal met een leisteen tegelvloer, vernieuwde meterkast (7 groepen en 2 aardlekschakelaars), toegang tot de woonkamer en trapopgang naar de 1e verdieping.

Royale L-vormige woonkamer met een leisteen tegelvloer, grotendeels spachtelputzwanden, stucwerkplafond met sierlijst, praktische trapkast en fraaie erker aan de voorzijde.

Grote leefkeuken aan de achterzijde van de woning met een leisteen tegelvloer, houten plafond met inbouwspots en 3 solartubes voor extra lichtintval, airconditioning (verwarmen en koelen), schouw met potkachel (ter overname) en toegang tot de diepe achtertuin door middel van een schuifpui en separate loopdeur. De nette keukeninrichting in hoekopstelling is voorzien van een keramische kookplaat, afzuigkap, koelkast, vriezer, vaatwasser, combi-oven en een granieten aanrechtblad.

Via een portaal is er toegang tot de oprit met carport, zodat je vanonder de carport droog binnen stapt in de woning.

Een 2e portaal biedt toegang tot de slaap- en badkamer en beschikt over een volledig betegelde toiletruimte met wandcloset en fonteintje.

Aan de voorzijde van de woning ligt een grote slaapkamer met een leisteen tegelvloer, spachtelputzwanden, stucwerkplafond met inbouwspots en een vaste 2-deurs kastenwand. Deze slaapkamer kan uiteraard ook prima fungeren als speelkamer of werkkamer.

Volledig betegelde badkamer/wasruimte voorzien van een inloopdouche, wastafel, wasmachine-aansluiting en opstelling van de hybride warmtepomp.

1e verdieping:

Overloop met vloerbedekking en toegang tot 3 slaapkamers en een 2e badkamer.

Drie prima slaapkamers welke allen zijn voorzien van een laminaatvloer, stucwerkwanden en een MDF-plafond. Twee slaapkamers beschikken over airconditioning ten behoeve van verwarmen en koelen.

Volledig betegelde 2e badkamer voorzien van een ligbad-/douchecombinatie, wandcloset met daarboven kastruimte, wastafel en een designradiator.

2e verdieping:

Middels een vlizotrap bereikbare bergzolder over de volle breedte van de woning met een novilonvloer.

Exterieur:

Onderhoudsvriendelijk aangelegde voortuin met sierbestrating, oprit met carport en ruim voldoende parkeergelegenheid voor meerdere auto’s.

Grote aangebouwde garage met een extra groepenkast, smeerput en openslaande deuren met toegang tot de oprit en carport. Vanuit de achtertuin is er een luik met toegang tot een grote vliering. De grote garage is ideaal voor eventueel hobby of beroep aan huis.

Riante, privacy biedende achtertuin met een groot gazon, sierbestrating, houten berging met grondwaterput en opstelling van de grondwaterpomp ten behoeve van de beregeningsinstallatie, houtopslag en achterom met poort.
Er is voldoende ruimte om eventueel een mantelzorgwoning bij de woning te realiseren.

Algemeen:
– bouwjaar 1962, in 1995 en 2004 uitgebouwd.
– perceeloppervlakte 558 m².
– inhoud 765 m³.
– gebruiksoppervlakte wonen 152 m².
– overige inpandige ruimte 42 m².
– gebouwgebonden buitenruimte 38 m².
– externe bergruimte 13 m².
– de woning is voorzien van dak-, spouwmuur- en vloerisolatie.
– de woning is voorzien van houten en kunststof kozijnen met isolerende en HR++ beglazing.
– verwarming en warmwatervoorziening door middel van een hybride warmtepomp (bouwjaar 2025).
– de begane grond is nagenoeg volledig voorzien van vloerverwarming.
– de woning is voorzien van 18 zonnepanelen.
– uitstekende ligging aan een mooie brede straat met gevarieerde bebouwing op loopafstand van de centrumvoorzieningen.

Contact

Neem contact met ons op

0497 36 91 93 info@boxmakelaardij.nl

"*" geeft vereiste velden aan

Dit veld is bedoeld voor validatiedoeleinden en moet niet worden gewijzigd.
*
*
*
*