Vragen of afspraak maken?

Stuur ons een bericht op Whatsapp

Bekijk onze bedrijfsvideo Volg ons (5900)
Bladel

Molenakkers 6

Omschrijving

In een rustige, gewilde woonomgeving aan een doodlopende straat op een steenworp afstand van het gezellige Bladelse centrum ligt deze keurig onderhouden en volledig geïsoleerde geschakelde bungalow welke is voorzien van een prachtige woonkamer met een plafondhoogte van 3,70 meter, 2 ruime slaapkamers, een inpandige garage en een zonnige, privacy biedende patiotuin van circa 33 m².
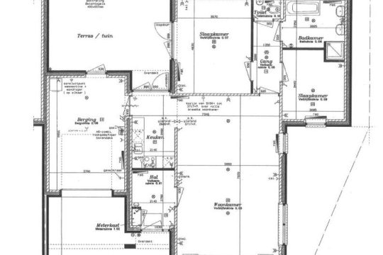
Indeling:

Begane grond:

Entreehal met tegelvloer, meterkast (7 groepen, 1 kookgroep en 2 aardlekschakelaars), garderobenis en toegang tot de woonkamer.

Prachtige woonkamer met een tegelvloer, erker aan de voorzijde, schouw met gashaard en een fraaie plafond-hoogte van maar liefst 3,70 meter.

Half-open keuken met tegelvloer, deur naar de patiotuin en een moderne keukeninrichting in hoekopstelling voorzien van een inductiekookplaat, afzuigkap, koelkast, combi-oven en vaatwasser.

Praktische inpandige garage met tegelvloer, wasmachine-aansluiting, opstelling van de c.v.-installatie, deur met toegang tot de patiotuin en elektrisch bedienbare segmentdeur met toegang tot de oprit.

Gang met tegelvloer en volledig betegelde toiletruimte met wandcloset en fonteintje. De gang biedt tevens toegang tot de 2 slaapkamers en de badkamer.

Beide slaapkamers zijn voorzien van een PVC-vloer en een ruime schuifwandenkast. De masterbedroom beschikt daarnaast over openslaande tuindeuren met toegang tot de patiotuin.

Exterieur:

Keurige voortuin met diverse beplanting en toegang tot de oprit.

Op het zonnige zuid-oosten gesitueerde, privacy biedende en onderhoudsvriendelijke patiotuin met sierbestrating en achterom met poort.

Algemeen:
– bouwjaar 2005.
– perceeloppervlakte 262 m².
– inhoud bungalow 475 m³.
– gebruiksoppervlakte wonen 97 m².
– overige inpandige ruimte (garage) 21 m².
– de woning is voorzien van dak-, spouwmuur- en vloerisolatie.
– de woning is voorzien van hardhouten kozijnen met HR++ isolerende beglazing.
– verwarming en warmwatervoorziening middels een c.v. combi-ketel (bouwjaar 2021).
– de bungalow is gedeeltelijk voorzien van vloerverwarming.

Bepalingen ten aanzien van verhuur:

– De woning is per 01-11-2025 beschikbaar.
– De huurprijs is exclusief gas, water, elektra, t.v., internet, etc.
– Roken is niet toegestaan, huisdieren in overleg.
– De woning wordt verhuurd inclusief stoffering.
– Verhuurder verlangt bij aanvang van de huur een waarborgsom ter hoogte van 2 maanden huur.

Kenmerken

  • Woonoppervlakte: 97 m2
  • Perceeloppervlakte: 262 m2
  • Slaapkamers: 2 kamers
  • Bouwjaar: 2005

Kenmerken

Overdracht

  • Woonoppervlakte: 97 m2
  • Perceeloppervlakte: 262 m2
  • Inhoud: 475 m3
  • Status: Verhuurd
  • Energielabel: C

Bouw

  • Ligging: Aan rustige weg, In woonwijk, ,
  • Kamers: 3
  • Slaapkamers: 2 kamers
  • Soort woning: Bungalow
  • Type: Geschakelde woning
  • Type dak: Plat dak

Omschrijving

In een rustige, gewilde woonomgeving aan een doodlopende straat op een steenworp afstand van het gezellige Bladelse centrum ligt deze keurig onderhouden en volledig geïsoleerde geschakelde bungalow welke is voorzien van een prachtige woonkamer met een plafondhoogte van 3,70 meter, 2 ruime slaapkamers, een inpandige garage en een zonnige, privacy biedende patiotuin van circa 33 m².
Indeling:

Begane grond:

Entreehal met tegelvloer, meterkast (7 groepen, 1 kookgroep en 2 aardlekschakelaars), garderobenis en toegang tot de woonkamer.

Prachtige woonkamer met een tegelvloer, erker aan de voorzijde, schouw met gashaard en een fraaie plafond-hoogte van maar liefst 3,70 meter.

Half-open keuken met tegelvloer, deur naar de patiotuin en een moderne keukeninrichting in hoekopstelling voorzien van een inductiekookplaat, afzuigkap, koelkast, combi-oven en vaatwasser.

Praktische inpandige garage met tegelvloer, wasmachine-aansluiting, opstelling van de c.v.-installatie, deur met toegang tot de patiotuin en elektrisch bedienbare segmentdeur met toegang tot de oprit.

Gang met tegelvloer en volledig betegelde toiletruimte met wandcloset en fonteintje. De gang biedt tevens toegang tot de 2 slaapkamers en de badkamer.

Beide slaapkamers zijn voorzien van een PVC-vloer en een ruime schuifwandenkast. De masterbedroom beschikt daarnaast over openslaande tuindeuren met toegang tot de patiotuin.

Exterieur:

Keurige voortuin met diverse beplanting en toegang tot de oprit.

Op het zonnige zuid-oosten gesitueerde, privacy biedende en onderhoudsvriendelijke patiotuin met sierbestrating en achterom met poort.

Algemeen:
– bouwjaar 2005.
– perceeloppervlakte 262 m².
– inhoud bungalow 475 m³.
– gebruiksoppervlakte wonen 97 m².
– overige inpandige ruimte (garage) 21 m².
– de woning is voorzien van dak-, spouwmuur- en vloerisolatie.
– de woning is voorzien van hardhouten kozijnen met HR++ isolerende beglazing.
– verwarming en warmwatervoorziening middels een c.v. combi-ketel (bouwjaar 2021).
– de bungalow is gedeeltelijk voorzien van vloerverwarming.

Bepalingen ten aanzien van verhuur:

– De woning is per 01-11-2025 beschikbaar.
– De huurprijs is exclusief gas, water, elektra, t.v., internet, etc.
– Roken is niet toegestaan, huisdieren in overleg.
– De woning wordt verhuurd inclusief stoffering.
– Verhuurder verlangt bij aanvang van de huur een waarborgsom ter hoogte van 2 maanden huur.

Contact

Neem contact met ons op

0497 36 91 93 info@boxmakelaardij.nl

"*" geeft vereiste velden aan

Dit veld is bedoeld voor validatiedoeleinden en moet niet worden gewijzigd.
    • *
      *
      *
    • *