Vragen of afspraak maken?

Stuur ons een bericht op Whatsapp

Bekijk onze bedrijfsvideo Volg ons (5900)
Hapert

Nijverheidsweg 7A

Omschrijving

Op een uitstekende locatie op het bedrijventerrein in Hapert gelegen vrijstaande bedrijfsruimte met kraanbanen, 3 segmentdeuren en kantoorruimte. Het pand beschikt over ruim voldoende parkeergelegenheid op eigen terrein.

Algemeen
Bedrijfsruimte: circa 1.150 m²
Kantoorruimte: circa 100 m²

Bedrijfsruimte
Royale multifunctionele bedrijfsruimte met een drukvaste betonvloer, TL-verlichting, meerdere lichtstraten, 2 elektrisch bedienbare segmentdeuren, uitgebreide groepenkast en 2 kraanbanen met 4 kraanliggers van 3.2 ton.

Indeling begane grond:

Entree kantoor aan de rechterzijde van het pand. Je komt in de entree/ontvangstruimte met tegelvloer en toegang tot een geheel betegeld dames- en herentoilet met fonteintje. Receptie met tegelvloer, systeemplafond met TL-verlichting en toegang tot de technische ruimte. Kantoor met marmoleumvloer en systeemplafond met TL-verlichting.

Geheel betegelde personeels- toilet-/wasruimte met 2 toiletten, 2 urinoirs, wasbak en toegang tot de lockerruimte en kantine. Kantine met tegelvloer, systeemplafond met TL-verlichting en een keukenblok.

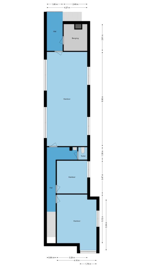
Indeling kantoor 1e verdieping:

Vanuit de bedrijfsruimte zijn er 2 trappen met toegang tot de 1e verdieping.

Gang met betegeld toilet met fonteintje.

Drie kantoren met TL-verlichting en voorzien van airconditioning.

Locatie:
Op het bedrijventerrein “Hapert” in Hapert is het bedrijfspand gunstig gesitueerd en goed bereikbaar.

Bereikbaarheid:
Het bedrijventerrein is goed bereikbaar en is gelegen op korte afstand van de op- en afrit van de autosnelweg A67 (Venlo-Antwerpen).

Bestemmingsplan:
Bestemmingsplan, bedrijf tot en met categorie 3.2 toegestaan.

Kenmerken

  • Bouwjaar: 1988

Plattegrond (2)

Kenmerken

Overdracht

  • Status: Te huur
  • Energielabel: B

Bouw

  • Ligging: Bedrijventerrein
  • Type: Bedrijfsruimte

Omschrijving

Op een uitstekende locatie op het bedrijventerrein in Hapert gelegen vrijstaande bedrijfsruimte met kraanbanen, 3 segmentdeuren en kantoorruimte. Het pand beschikt over ruim voldoende parkeergelegenheid op eigen terrein.

Algemeen
Bedrijfsruimte: circa 1.150 m²
Kantoorruimte: circa 100 m²

Bedrijfsruimte
Royale multifunctionele bedrijfsruimte met een drukvaste betonvloer, TL-verlichting, meerdere lichtstraten, 2 elektrisch bedienbare segmentdeuren, uitgebreide groepenkast en 2 kraanbanen met 4 kraanliggers van 3.2 ton.

Indeling begane grond:

Entree kantoor aan de rechterzijde van het pand. Je komt in de entree/ontvangstruimte met tegelvloer en toegang tot een geheel betegeld dames- en herentoilet met fonteintje. Receptie met tegelvloer, systeemplafond met TL-verlichting en toegang tot de technische ruimte. Kantoor met marmoleumvloer en systeemplafond met TL-verlichting.

Geheel betegelde personeels- toilet-/wasruimte met 2 toiletten, 2 urinoirs, wasbak en toegang tot de lockerruimte en kantine. Kantine met tegelvloer, systeemplafond met TL-verlichting en een keukenblok.

Indeling kantoor 1e verdieping:

Vanuit de bedrijfsruimte zijn er 2 trappen met toegang tot de 1e verdieping.

Gang met betegeld toilet met fonteintje.

Drie kantoren met TL-verlichting en voorzien van airconditioning.

Locatie:
Op het bedrijventerrein “Hapert” in Hapert is het bedrijfspand gunstig gesitueerd en goed bereikbaar.

Bereikbaarheid:
Het bedrijventerrein is goed bereikbaar en is gelegen op korte afstand van de op- en afrit van de autosnelweg A67 (Venlo-Antwerpen).

Bestemmingsplan:
Bestemmingsplan, bedrijf tot en met categorie 3.2 toegestaan.

Contact

Neem contact met ons op

0497 36 91 93 info@boxmakelaardij.nl

"*" geeft vereiste velden aan

Dit veld is bedoeld voor validatiedoeleinden en moet niet worden gewijzigd.
    • *
      *
      *
    • *