Vragen of afspraak maken?

Stuur ons een bericht op Whatsapp

Bekijk onze bedrijfsvideo Volg ons (5900)
Bladel

Antoon Coolenlaan 108

€ 375.000 k.k.

Omschrijving

Hier woon je ruim, groen en boordevol potentie!
Aan de Antoon Coolenlaan 108 in Bladel vind je deze zeer royale tussenwoning van maar liefst 122 m² gebruiksoppervlakte, perfect voor wie op zoek is naar ruimte, een fijne ligging én de kans om alles helemaal naar eigen smaak te moderniseren. De basis is goed: degelijk gebouwd, betonnen verdiepingsvloeren, vier ruime slaapkamers en een zonnige, privacy biedende achtertuin op het zuiden. Voeg daar de kindvriendelijke woonomgeving, het vrije uitzicht aan de voorzijde en de ligging op loopafstand van een basisschool en groot speelveld aan toe, en je hebt een heerlijk familiehuis met toekomstwaarde.

Indeling:

Begane grond:

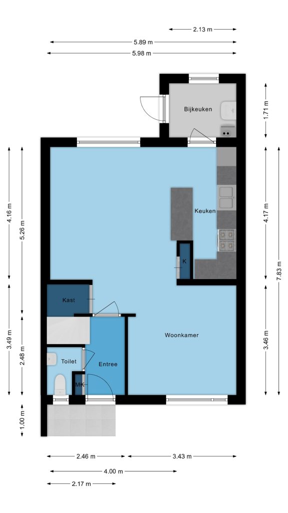
Via de overdekte entree stap je binnen in de hal met tegelvloer. Hier vind je de vernieuwde meterkast (4 groepen en 2 aardlekschakelaars), het gedeeltelijk betegelde toilet met fonteintje, de trapopgang naar boven én toegang tot de woonkamer.

De ruime Z-vormige woonkamer is heerlijk licht en biedt volop mogelijkheden voor een royale zit- en eethoek. De tegelvloer, behangwanden en het stucwerkplafond vormen een nette basis, terwijl de praktische trapkast zorgt voor extra bergruimte. Aan de voorzijde geniet je van een vrij uitzicht over de riante openbare groenvoorziening, wat zorgt voor een prettig gevoel van ruimte en rust.

De open keuken sluit direct aan op de woonkamer en is voorzien van een eenvoudige maar functionele keukeninrichting met gaskookplaat, afzuigkap, koelkast en veel kastruimte.

Aangrenzend vind je de praktische bijkeuken met tegelvloer, uitstortgootsteen en keukengeiser – ideaal voor extra opslag of als wasruimte.

Eerste verdieping:

Op de overloop met vloerbedekking heb je toegang tot drie riante slaapkamers, de badkamer én de vaste trap naar de tweede verdieping.

Alle slaapkamers zijn royaal van formaat en afgewerkt met vloerbedekking, behangwanden en stucwerkplafonds. Twee van de drie slaapkamers beschikken over een ingebouwde kastenwand, wat zorgt voor extra gemak en opbergruimte.

De badkamer is grotendeels betegeld en ingericht met een douchecabine, toilet en wastafel – functioneel en klaar om naar wens te moderniseren.

Tweede verdieping:

Via de vaste trap bereik je de voorzolder met vloerbedekking, bergruimte onder de dakschuinte en de c.v.-ruimte met opstelling van de c.v.-ketel en toegang tot een vliering.

Hier bevindt zich ook de royale vierde slaapkamer, voorzien van vloerbedekking en een Velux dakvenster dat zorgt voor prettig daglicht. Ideaal als extra slaapkamer, werkruimte of hobbykamer.

Exterieur:

Aan de voorzijde beschikt de woning over een keurige voortuin met diverse beplanting en toegang tot de overdekte entree.

De achterzijde is misschien wel één van de grootste pluspunten: een op het zonnige zuiden gelegen, privacy biedende achtertuin met bestrating, gazon, diverse beplanting en een zonneluifel. Achterin de tuin staat een ruime gemetselde berging met elektra, en via de overdekte achterom met poort ben je zo buitenom.

Algemeen:
– bouwjaar 1970.
– perceeloppervlakte 141 m².
– inhoud 434 m³.
– gebruiksoppervlakte wonen 122 m².
– overige inpandige ruimte 4 m².
– gebouwgebonden buitenruimte 2 m².
– externe bergruimte 10 m².
– de woning is voorzien van houten kozijnen met isolerende beglazing.
– verwarming en warmwatervoorziening middels een Intergas HRE c.v. combi-ketel (bouwjaar 2025). Warmwatervoorziening keuken middels een Vaillant keukengeiser (bouwjaar 2006).
– alle verdiepingsvloeren zijn uitgevoerd in beton.
– deze woning biedt je een uitgelezen kans om met een solide en ruime basis volledig je eigen woonwensen te realiseren, waarbij je alle vrijheid hebt om de indeling te optimaliseren, de keuken en badkamer eigentijds te vernieuwen, vloeren en wandafwerking naar eigen stijl te kiezen en zo stap voor stap een modern, comfortabel en persoonlijk thuis te creëren dat perfect aansluit bij jouw smaak en levensstijl.
– uitstekende ligging tegenover een riante openbare groenvoorziening met ruim voldoende openbare parkeergelegenheid in de directe omgeving en nabij een groot speelveld en basisschool.

Kortom: Antoon Coolenlaan 108 is een zeer ruime en degelijk gebouwde tussenwoning op een fantastische, groene en kindvriendelijke locatie, met vier royale slaapkamers, betonnen verdiepingsvloeren, een zonnige tuin op het zuiden en volop mogelijkheden om er helemaal jouw droomhuis van te maken – een huis waar je de ruimte voelt, de rust ervaart en met recht kunt zeggen: hier wil je wonen.

Kenmerken

  • Woonoppervlakte: 122 m2
  • Perceeloppervlakte: 141 m2
  • Slaapkamers: 4 kamers
  • Bouwjaar: 1970

Plattegrond (9)

Video

Kenmerken

Overdracht

  • Vraagprijs: € 375.000 k.k.
  • Woonoppervlakte: 122 m2
  • Perceeloppervlakte: 141 m2
  • Inhoud: 434 m3
  • Status: Te koop
  • Energielabel: C

Bouw

  • Ligging: Aan rustige weg, In woonwijk, Vrij uitzicht,
  • Kamers: 5
  • Slaapkamers: 4 kamers
  • Soort woning: Eengezinswoning
  • Type: Tussenwoning
  • Type dak: Zadeldak

Omschrijving

Hier woon je ruim, groen en boordevol potentie!
Aan de Antoon Coolenlaan 108 in Bladel vind je deze zeer royale tussenwoning van maar liefst 122 m² gebruiksoppervlakte, perfect voor wie op zoek is naar ruimte, een fijne ligging én de kans om alles helemaal naar eigen smaak te moderniseren. De basis is goed: degelijk gebouwd, betonnen verdiepingsvloeren, vier ruime slaapkamers en een zonnige, privacy biedende achtertuin op het zuiden. Voeg daar de kindvriendelijke woonomgeving, het vrije uitzicht aan de voorzijde en de ligging op loopafstand van een basisschool en groot speelveld aan toe, en je hebt een heerlijk familiehuis met toekomstwaarde.

Indeling:

Begane grond:

Via de overdekte entree stap je binnen in de hal met tegelvloer. Hier vind je de vernieuwde meterkast (4 groepen en 2 aardlekschakelaars), het gedeeltelijk betegelde toilet met fonteintje, de trapopgang naar boven én toegang tot de woonkamer.

De ruime Z-vormige woonkamer is heerlijk licht en biedt volop mogelijkheden voor een royale zit- en eethoek. De tegelvloer, behangwanden en het stucwerkplafond vormen een nette basis, terwijl de praktische trapkast zorgt voor extra bergruimte. Aan de voorzijde geniet je van een vrij uitzicht over de riante openbare groenvoorziening, wat zorgt voor een prettig gevoel van ruimte en rust.

De open keuken sluit direct aan op de woonkamer en is voorzien van een eenvoudige maar functionele keukeninrichting met gaskookplaat, afzuigkap, koelkast en veel kastruimte.

Aangrenzend vind je de praktische bijkeuken met tegelvloer, uitstortgootsteen en keukengeiser – ideaal voor extra opslag of als wasruimte.

Eerste verdieping:

Op de overloop met vloerbedekking heb je toegang tot drie riante slaapkamers, de badkamer én de vaste trap naar de tweede verdieping.

Alle slaapkamers zijn royaal van formaat en afgewerkt met vloerbedekking, behangwanden en stucwerkplafonds. Twee van de drie slaapkamers beschikken over een ingebouwde kastenwand, wat zorgt voor extra gemak en opbergruimte.

De badkamer is grotendeels betegeld en ingericht met een douchecabine, toilet en wastafel – functioneel en klaar om naar wens te moderniseren.

Tweede verdieping:

Via de vaste trap bereik je de voorzolder met vloerbedekking, bergruimte onder de dakschuinte en de c.v.-ruimte met opstelling van de c.v.-ketel en toegang tot een vliering.

Hier bevindt zich ook de royale vierde slaapkamer, voorzien van vloerbedekking en een Velux dakvenster dat zorgt voor prettig daglicht. Ideaal als extra slaapkamer, werkruimte of hobbykamer.

Exterieur:

Aan de voorzijde beschikt de woning over een keurige voortuin met diverse beplanting en toegang tot de overdekte entree.

De achterzijde is misschien wel één van de grootste pluspunten: een op het zonnige zuiden gelegen, privacy biedende achtertuin met bestrating, gazon, diverse beplanting en een zonneluifel. Achterin de tuin staat een ruime gemetselde berging met elektra, en via de overdekte achterom met poort ben je zo buitenom.

Algemeen:
– bouwjaar 1970.
– perceeloppervlakte 141 m².
– inhoud 434 m³.
– gebruiksoppervlakte wonen 122 m².
– overige inpandige ruimte 4 m².
– gebouwgebonden buitenruimte 2 m².
– externe bergruimte 10 m².
– de woning is voorzien van houten kozijnen met isolerende beglazing.
– verwarming en warmwatervoorziening middels een Intergas HRE c.v. combi-ketel (bouwjaar 2025). Warmwatervoorziening keuken middels een Vaillant keukengeiser (bouwjaar 2006).
– alle verdiepingsvloeren zijn uitgevoerd in beton.
– deze woning biedt je een uitgelezen kans om met een solide en ruime basis volledig je eigen woonwensen te realiseren, waarbij je alle vrijheid hebt om de indeling te optimaliseren, de keuken en badkamer eigentijds te vernieuwen, vloeren en wandafwerking naar eigen stijl te kiezen en zo stap voor stap een modern, comfortabel en persoonlijk thuis te creëren dat perfect aansluit bij jouw smaak en levensstijl.
– uitstekende ligging tegenover een riante openbare groenvoorziening met ruim voldoende openbare parkeergelegenheid in de directe omgeving en nabij een groot speelveld en basisschool.

Kortom: Antoon Coolenlaan 108 is een zeer ruime en degelijk gebouwde tussenwoning op een fantastische, groene en kindvriendelijke locatie, met vier royale slaapkamers, betonnen verdiepingsvloeren, een zonnige tuin op het zuiden en volop mogelijkheden om er helemaal jouw droomhuis van te maken – een huis waar je de ruimte voelt, de rust ervaart en met recht kunt zeggen: hier wil je wonen.

Documenten

Selecteer onderstaande documenten om ze te downloaden

Contact

Neem contact met ons op

0497 36 91 93 info@boxmakelaardij.nl

"*" geeft vereiste velden aan

Dit veld is bedoeld voor validatiedoeleinden en moet niet worden gewijzigd.
    • *
      *
      *
    • *