Vragen of afspraak maken?

Stuur ons een bericht op Whatsapp

Bekijk onze bedrijfsvideo Volg ons (5900)
Reusel

de Wan 9

Omschrijving

In een verkeersarme en kindvriendelijke woonomgeving ligt deze keurig onderhouden en op fraaie wijze gemoderniseerde tussenwoning welke onder andere is voorzien van een fraaie leefruimte met gietvloer, 4 riante slaapkamers en een achtertuin op het zonnige westen met een royale gemetselde berging.

Indeling:

Begane grond:

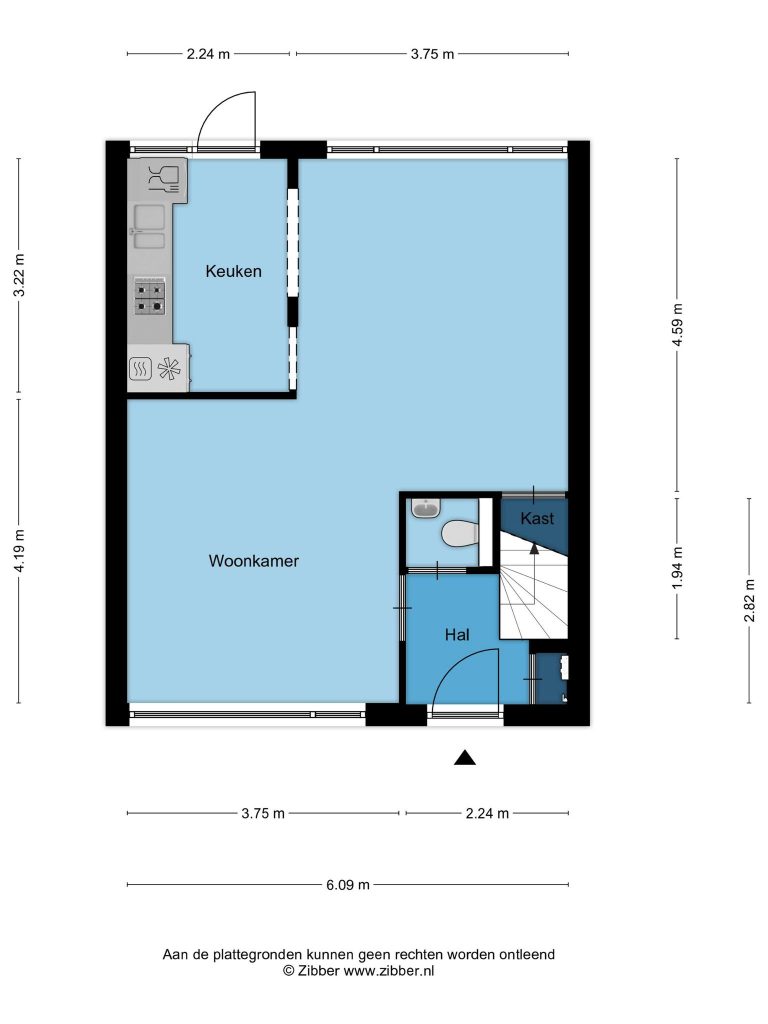
Entreehal met gietvloer, halfhoog betegelde toiletruimte met wandcloset en fonteintje, vernieuwde meterkast (5 groepen en 2 aardlekschakelaars), toegang tot de woonkamer en trapopgang naar de 1e verdieping.

Erg sfeervolle Z-vormige woonkamer voorzien van een gietvloer, spachtelputz- en stucwerkwanden, stucwerkplafond met inbouwspots en een handige trapkast. De grote raampartijen aan voor- en achterzijde zorgen voor een aangename lichtinval in deze woonkamer.

Aan de achterzijde is de half-open keuken gesitueerd met een houtlook tegelvloer en deur met toegang tot de achtertuin. De keurige keukeninrichting is voorzien van een gaskookplaat, afzuigkap, combi-oven, vaatwasser, koelkast met vriesvak en opstelling van de c.v.-installatie.

1e verdieping:

Overloop met laminaatvloer, toegang tot 3 slaapkamers en de badkamer, almede een vaste trapopgang naar de 2e verdieping.

De drie slaapkamers zijn allen riant en voorzien van een laminaatvloer, stucwerkwanden en een houten plafond (met inbouwspots in 2 van de 3 slaapkamers). De slaapkamers aan de achterzijde zijn voorzien van elektrisch bedienbare rolluiken.

Volledig betegelde badkamer voorzien van een douchecabine, badmeubel met wastafel, designradiator en kunststof plafond met inbouwspots.

2e verdieping:

Middels een vaste trap bereikbare voorzolder met laminaatvloer, wasmachine-aansluiting, mechanische ventilatie unit en dakkapel met elektrisch bedienbaar rolluik.

Ruime 4e slaapkamer voorzien van een laminaatvloer, behang- en stucwerkwanden, bergruimte onder de dakschuinte en dakkapel met elektrisch bedienbaar rolluik.

Exterieur:

Keurig aangelegde voortuin met buxushagen, diverse beplanting en pad met toegang tot de voordeur.

Op het zonnige westen gesitueerde achtertuin voorzien van diverse beplanting, bestrating, zonneluifel en ruime gemetselde berging met elektra en achterom met poort.

Algemeen:
– bouwjaar 1974.
– perceeloppervlakte 146 m².
– inhoud 370 m3.
– gebruiksoppervlakte wonen 110 m².
– externe bergruimte 14 m².
– de woning is voorzien van dak-, spouwmuur- en vloerisolatie.
– de woning is (met uitzondering van de voordeur) volledig voorzien van isolerende beglazing. Waarbij de achtergevel is voorzien van vernieuwde hardhouten kozijnen met draai-/kiepramen.
– verwarming en warmwatervoorziening middels een Remeha c.v. combi-ketel (bouwjaar 2015).
– energielabel C.
– het metselwerk van de achtergevel is volledig vernieuwd.
– de dakkapel op de 2e verdieping is in 2021 geplaatst.
– het buitenschilderwerk is in 2021 vernieuwd.
– fraaie ligging aan een kindvriendelijk woonerf tegenover een speeltuintje.

Kenmerken

  • Woonoppervlakte: 110 m2
  • Perceeloppervlakte: 146 m2
  • Slaapkamers: 4 kamers
  • Bouwjaar: 1974

Kenmerken

Overdracht

  • Woonoppervlakte: 110 m2
  • Perceeloppervlakte: 146 m2
  • Inhoud: 370 m3
  • Status: Verkocht
  • Energielabel: C

Bouw

  • Ligging: Aan rustige weg, In woonwijk, ,
  • Kamers: 5
  • Slaapkamers: 4 kamers
  • Soort woning: Eengezinswoning
  • Type: Tussenwoning
  • Type dak: Zadeldak

Omschrijving

In een verkeersarme en kindvriendelijke woonomgeving ligt deze keurig onderhouden en op fraaie wijze gemoderniseerde tussenwoning welke onder andere is voorzien van een fraaie leefruimte met gietvloer, 4 riante slaapkamers en een achtertuin op het zonnige westen met een royale gemetselde berging.

Indeling:

Begane grond:

Entreehal met gietvloer, halfhoog betegelde toiletruimte met wandcloset en fonteintje, vernieuwde meterkast (5 groepen en 2 aardlekschakelaars), toegang tot de woonkamer en trapopgang naar de 1e verdieping.

Erg sfeervolle Z-vormige woonkamer voorzien van een gietvloer, spachtelputz- en stucwerkwanden, stucwerkplafond met inbouwspots en een handige trapkast. De grote raampartijen aan voor- en achterzijde zorgen voor een aangename lichtinval in deze woonkamer.

Aan de achterzijde is de half-open keuken gesitueerd met een houtlook tegelvloer en deur met toegang tot de achtertuin. De keurige keukeninrichting is voorzien van een gaskookplaat, afzuigkap, combi-oven, vaatwasser, koelkast met vriesvak en opstelling van de c.v.-installatie.

1e verdieping:

Overloop met laminaatvloer, toegang tot 3 slaapkamers en de badkamer, almede een vaste trapopgang naar de 2e verdieping.

De drie slaapkamers zijn allen riant en voorzien van een laminaatvloer, stucwerkwanden en een houten plafond (met inbouwspots in 2 van de 3 slaapkamers). De slaapkamers aan de achterzijde zijn voorzien van elektrisch bedienbare rolluiken.

Volledig betegelde badkamer voorzien van een douchecabine, badmeubel met wastafel, designradiator en kunststof plafond met inbouwspots.

2e verdieping:

Middels een vaste trap bereikbare voorzolder met laminaatvloer, wasmachine-aansluiting, mechanische ventilatie unit en dakkapel met elektrisch bedienbaar rolluik.

Ruime 4e slaapkamer voorzien van een laminaatvloer, behang- en stucwerkwanden, bergruimte onder de dakschuinte en dakkapel met elektrisch bedienbaar rolluik.

Exterieur:

Keurig aangelegde voortuin met buxushagen, diverse beplanting en pad met toegang tot de voordeur.

Op het zonnige westen gesitueerde achtertuin voorzien van diverse beplanting, bestrating, zonneluifel en ruime gemetselde berging met elektra en achterom met poort.

Algemeen:
– bouwjaar 1974.
– perceeloppervlakte 146 m².
– inhoud 370 m3.
– gebruiksoppervlakte wonen 110 m².
– externe bergruimte 14 m².
– de woning is voorzien van dak-, spouwmuur- en vloerisolatie.
– de woning is (met uitzondering van de voordeur) volledig voorzien van isolerende beglazing. Waarbij de achtergevel is voorzien van vernieuwde hardhouten kozijnen met draai-/kiepramen.
– verwarming en warmwatervoorziening middels een Remeha c.v. combi-ketel (bouwjaar 2015).
– energielabel C.
– het metselwerk van de achtergevel is volledig vernieuwd.
– de dakkapel op de 2e verdieping is in 2021 geplaatst.
– het buitenschilderwerk is in 2021 vernieuwd.
– fraaie ligging aan een kindvriendelijk woonerf tegenover een speeltuintje.

Contact

Neem contact met ons op

0497 36 91 93 info@boxmakelaardij.nl

"*" geeft vereiste velden aan

Dit veld is bedoeld voor validatiedoeleinden en moet niet worden gewijzigd.
    • *
      *
      *
    • *