Vragen of afspraak maken?

Stuur ons een bericht op Whatsapp

Bekijk onze bedrijfsvideo Volg ons (5900)
Bladel

Doolandweg 10

Omschrijving

Op een groot perceel van maar liefst 219 m² in een gewilde woonomgeving op een steenworp afstand van het gezellige Bladelse centrum ligt deze verrassend ruime tussenwoning met eigen oprit en carport. Deze woning met 117 m² gebruiksoppervlakte beschikt over 4 riante slaapkamers, een inpandige berging en een riante, privacy biedende achtertuin op het zonnige westen. Aan de voorzijde is er parkeergelegenheid voor meerdere auto’s op eigen terrein.

Indeling:

Begane grond:

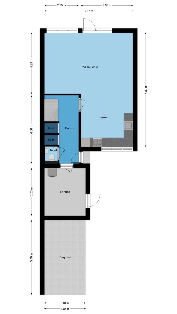
Je komt vanaf de oprit binnen in de hal welke is voorzien van een tegelvloer, volledig betegelde toiletruimte met wandcloset en fonteintje, meterkast (4 groepen) en een handige inbouwkast. De hal biedt toegang tot de woonkamer, inpandige berging aan de voorzijde en middels een trapopgang bereik je de 1e verdieping.

Inpandige berging met wasmachine-aansluiting en deur met toegang tot de oprit.

Aan de voorzijde van de woning gesitueerde open keuken met PVC-vloer en een keukeninrichting in hoekopstelling voorzien van een gaskookplaat, afzuigkap, vaatwasser, koel-/vriescombinatie en een riant aanrechtblad met ruim voldoende werkruimte.

Brede en zeer lichte woonkamer met een PVC-vloer, granolwanden, stucwerkplafond en deur met toegang tot de achtertuin. Vanuit de woonkamer is er een mooi uitzicht over de royale achtertuin.

1e verdieping:

Overloop met een laminaatvloer, toegang tot 3 slaapkamers en de badkamer, alsmede een vaste trapopgang naar de 2e verdieping.

Drie royale slaapkamers voorzien van een laminaatvloer, stucwerkwanden en een lichte plafondafwerking.

Volledig betegelde badkamer voorzien van een douchecabine, wandcloset en badmeubel met wastafel.

2e verdieping:

Middels een vaste trapopgang bereikbare voorzolder met een laminaatvloer, opstelling van de c.v.-installatie en toegang tot een luik met daarachter bergruimte aan beide zijden onder de dakschuinte.

Riante 4e slaapkamer met een laminaatvloer en Velux dakvenster.

Exterieur:

Ruime voortuin met klinkerbestrating, carport en parkeergelegenheid voor meerdere auto’s.

Op het zonnige westen gesitueerde, privacy biedende achtertuin met sierbestrating, kunstgras en diverse beplanting.

Algemeen:

– bouwjaar 1975.
– perceeloppervlakte 219 m².
– inhoud 443 m³.
– gebruiksoppervlakte wonen 117 m².
– overige inpandige ruimte 9 m².
– gebouwgebonden buitenruimte 15 m².
– de woning is voorzien van houten kozijnen met HR++ beglazing op de begane grond en kunststof kozijnen met dubbel glas op de 1e verdieping.
– verwarming en warmwatervoorziening middels een Nefit c.v. combi-ketel (bouwjaar 2023).
– het betreft hier een riante woning, gelegen op een mooi groot perceel. Wel dient koper op bepaalde onderdelen rekening te houden met enige moderniseringswerkzaamheden.
– uitstekende locatie aan een fraaie brede straat op loopafstand van de centrumvoorzieningen.

Kenmerken

  • Woonoppervlakte: 117 m2
  • Perceeloppervlakte: 219 m2
  • Slaapkamers: 4 kamers
  • Bouwjaar: 1975

Kenmerken

Overdracht

  • Woonoppervlakte: 117 m2
  • Perceeloppervlakte: 219 m2
  • Inhoud: 443 m3
  • Status: Verkocht
  • Energielabel: C

Bouw

  • Ligging: Aan rustige weg, In woonwijk, ,
  • Kamers: 5
  • Slaapkamers: 4 kamers
  • Soort woning: Eengezinswoning
  • Type: Tussenwoning
  • Type dak: Zadeldak

Omschrijving

Op een groot perceel van maar liefst 219 m² in een gewilde woonomgeving op een steenworp afstand van het gezellige Bladelse centrum ligt deze verrassend ruime tussenwoning met eigen oprit en carport. Deze woning met 117 m² gebruiksoppervlakte beschikt over 4 riante slaapkamers, een inpandige berging en een riante, privacy biedende achtertuin op het zonnige westen. Aan de voorzijde is er parkeergelegenheid voor meerdere auto’s op eigen terrein.

Indeling:

Begane grond:

Je komt vanaf de oprit binnen in de hal welke is voorzien van een tegelvloer, volledig betegelde toiletruimte met wandcloset en fonteintje, meterkast (4 groepen) en een handige inbouwkast. De hal biedt toegang tot de woonkamer, inpandige berging aan de voorzijde en middels een trapopgang bereik je de 1e verdieping.

Inpandige berging met wasmachine-aansluiting en deur met toegang tot de oprit.

Aan de voorzijde van de woning gesitueerde open keuken met PVC-vloer en een keukeninrichting in hoekopstelling voorzien van een gaskookplaat, afzuigkap, vaatwasser, koel-/vriescombinatie en een riant aanrechtblad met ruim voldoende werkruimte.

Brede en zeer lichte woonkamer met een PVC-vloer, granolwanden, stucwerkplafond en deur met toegang tot de achtertuin. Vanuit de woonkamer is er een mooi uitzicht over de royale achtertuin.

1e verdieping:

Overloop met een laminaatvloer, toegang tot 3 slaapkamers en de badkamer, alsmede een vaste trapopgang naar de 2e verdieping.

Drie royale slaapkamers voorzien van een laminaatvloer, stucwerkwanden en een lichte plafondafwerking.

Volledig betegelde badkamer voorzien van een douchecabine, wandcloset en badmeubel met wastafel.

2e verdieping:

Middels een vaste trapopgang bereikbare voorzolder met een laminaatvloer, opstelling van de c.v.-installatie en toegang tot een luik met daarachter bergruimte aan beide zijden onder de dakschuinte.

Riante 4e slaapkamer met een laminaatvloer en Velux dakvenster.

Exterieur:

Ruime voortuin met klinkerbestrating, carport en parkeergelegenheid voor meerdere auto’s.

Op het zonnige westen gesitueerde, privacy biedende achtertuin met sierbestrating, kunstgras en diverse beplanting.

Algemeen:

– bouwjaar 1975.
– perceeloppervlakte 219 m².
– inhoud 443 m³.
– gebruiksoppervlakte wonen 117 m².
– overige inpandige ruimte 9 m².
– gebouwgebonden buitenruimte 15 m².
– de woning is voorzien van houten kozijnen met HR++ beglazing op de begane grond en kunststof kozijnen met dubbel glas op de 1e verdieping.
– verwarming en warmwatervoorziening middels een Nefit c.v. combi-ketel (bouwjaar 2023).
– het betreft hier een riante woning, gelegen op een mooi groot perceel. Wel dient koper op bepaalde onderdelen rekening te houden met enige moderniseringswerkzaamheden.
– uitstekende locatie aan een fraaie brede straat op loopafstand van de centrumvoorzieningen.

Contact

Neem contact met ons op

0497 36 91 93 info@boxmakelaardij.nl

"*" geeft vereiste velden aan

Dit veld is bedoeld voor validatiedoeleinden en moet niet worden gewijzigd.
    • *
      *
      *
    • *