Vragen of afspraak maken?

Stuur ons een bericht op Whatsapp

Bekijk onze bedrijfsvideo Volg ons (5900)
Reusel

Groeneweg 58

Omschrijving

Handige klussers opgelet: in een zeer gewilde, groene woonomgeving bieden wij deze verrassend ruime tussenwoning te koop aan met 3 riante slaapkamers, bijkeuken, royaal woongedeelte en een op het zonnige westen gelegen achtertuin met royale gemetselde berging. Het betreft hier een woning met veel potentie en verrassend veel ruimte, maar koper dient rekening te houden met de nodige moderniseringswerkzaamheden.

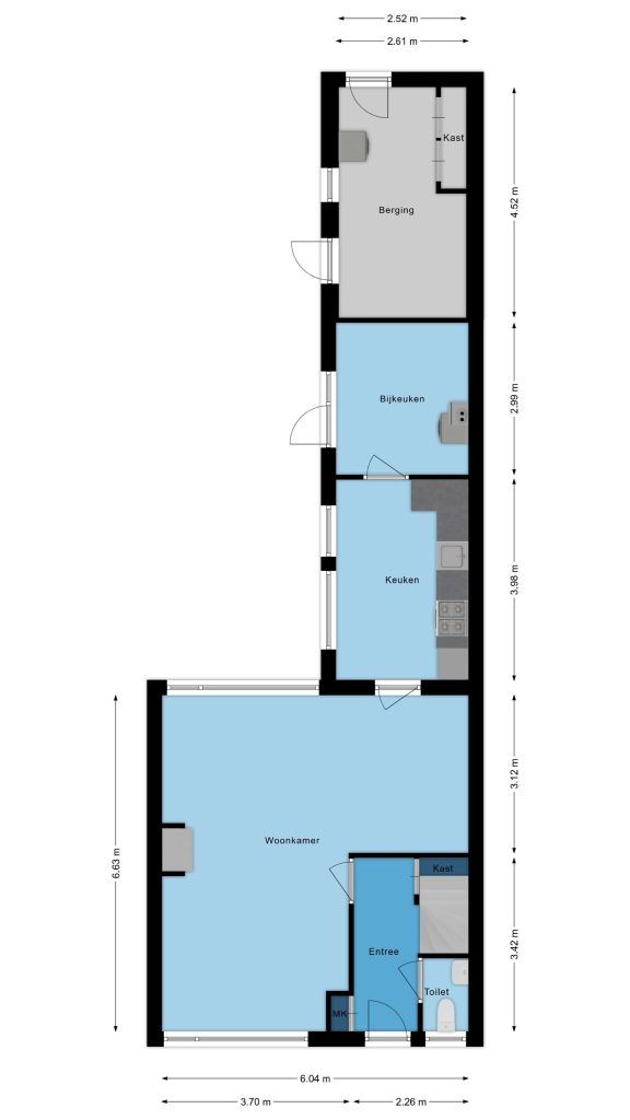
Begane grond

Entree
Entreehal met een tegelvloer, meterkast, toiletruimte, praktische trapkast en toegang tot de woonkamer en trapopgang naar de 1e verdieping.

Woonkamer
Zeer lichte en ruim opgezette woonkamer met een tegelvloer, stucwerk plafond en schouw met houthaard. Aan beide zijdes zijn grote raampartijen geplaatst waardoor er veel daglicht toetreedt. Vanuit hier heb je toegang tot de uitgebouwde keuken.

Woonkeuken
In de uitbouw geplaatste woonkeuken voorzien van keukeninrichting in hoekopstelling voorzien van gasfornuis, afzuigkap, koelkast, vaatwasser en oven. Vanuit hier heb je toegang tot de bijkeuken.

Bijkeuken
Praktische, half betegelde bijkeuken voorzien van witgoedaansluitingen, elektrische boiler en plaats voor een koelkast en/of diepvries.

Eerste verdieping
Overloop met toegang tot 3 slaapkamers en de badkamer, alsmede een vaste trapopgang naar de 2e verdieping. De 3 ruim bemeten slaapkamers zijn allen voorzien van vloerbedekking, behangwanden en schroten plafonds.

Badkamer
Grotendeels betegelde badkamer met inloopdouche, wastafel en radiator.

Tweede verdieping
Middels vlizo trap te bereiken, zeer ruime en op sta hoogte zolderruimte met de CV-installatie (Vaillant). Door het plaatsen van een vaste trap kan je hier eenvoudig een vierde slaapkamer creëren.

Exterieur

Achtertuin
Op het zonnige westen gesitueerde achtertuin met bestrating, zonneluifel, overkapping en achterom met poort en een gemetselde berging met elektra en tegelvloer.

Voortuin
Keurig aangelegde voortuin met sierbestrating, siergrind en diverse vaste beplanting.

Algemeen:
– bouwjaar 1977;
– aan een prachtige groene straat, op loopafstand van basisschool en het centrum gelegen;
– 3 ruime slaapkamers op de verdieping;
– fors aangebouwd op de begane grond;
– het betreft hier een zeer ruime woning. Koper dient echter wel rekening te houden met de nodige moderniseringswerkzaamheden;
– de woning is voorzien van dak- en spouwmuurisolatie;
– de woning is voorzien van houten kozijnen met dubbele beglazing;
– prima ligging in een verkeersarme, kindvriendelijke woonomgeving met ruim voldoende openbare parkeergelegenheid in de directe omgeving en nabij basisschool en diverse openbare speelgelegenheden.

Kenmerken

  • Woonoppervlakte: 99 m2
  • Perceeloppervlakte: 173 m2
  • Slaapkamers: 3 kamers
  • Bouwjaar: 1977

Kenmerken

Overdracht

  • Woonoppervlakte: 99 m2
  • Perceeloppervlakte: 173 m2
  • Inhoud: 441 m3
  • Status: Verkocht
  • Energielabel: B

Bouw

  • Ligging: In woonwijk, , ,
  • Kamers: 7
  • Slaapkamers: 3 kamers
  • Soort woning: Eengezinswoning
  • Type: Tussenwoning
  • Type dak: Zadeldak

Omschrijving

Handige klussers opgelet: in een zeer gewilde, groene woonomgeving bieden wij deze verrassend ruime tussenwoning te koop aan met 3 riante slaapkamers, bijkeuken, royaal woongedeelte en een op het zonnige westen gelegen achtertuin met royale gemetselde berging. Het betreft hier een woning met veel potentie en verrassend veel ruimte, maar koper dient rekening te houden met de nodige moderniseringswerkzaamheden.

Begane grond

Entree
Entreehal met een tegelvloer, meterkast, toiletruimte, praktische trapkast en toegang tot de woonkamer en trapopgang naar de 1e verdieping.

Woonkamer
Zeer lichte en ruim opgezette woonkamer met een tegelvloer, stucwerk plafond en schouw met houthaard. Aan beide zijdes zijn grote raampartijen geplaatst waardoor er veel daglicht toetreedt. Vanuit hier heb je toegang tot de uitgebouwde keuken.

Woonkeuken
In de uitbouw geplaatste woonkeuken voorzien van keukeninrichting in hoekopstelling voorzien van gasfornuis, afzuigkap, koelkast, vaatwasser en oven. Vanuit hier heb je toegang tot de bijkeuken.

Bijkeuken
Praktische, half betegelde bijkeuken voorzien van witgoedaansluitingen, elektrische boiler en plaats voor een koelkast en/of diepvries.

Eerste verdieping
Overloop met toegang tot 3 slaapkamers en de badkamer, alsmede een vaste trapopgang naar de 2e verdieping. De 3 ruim bemeten slaapkamers zijn allen voorzien van vloerbedekking, behangwanden en schroten plafonds.

Badkamer
Grotendeels betegelde badkamer met inloopdouche, wastafel en radiator.

Tweede verdieping
Middels vlizo trap te bereiken, zeer ruime en op sta hoogte zolderruimte met de CV-installatie (Vaillant). Door het plaatsen van een vaste trap kan je hier eenvoudig een vierde slaapkamer creëren.

Exterieur

Achtertuin
Op het zonnige westen gesitueerde achtertuin met bestrating, zonneluifel, overkapping en achterom met poort en een gemetselde berging met elektra en tegelvloer.

Voortuin
Keurig aangelegde voortuin met sierbestrating, siergrind en diverse vaste beplanting.

Algemeen:
– bouwjaar 1977;
– aan een prachtige groene straat, op loopafstand van basisschool en het centrum gelegen;
– 3 ruime slaapkamers op de verdieping;
– fors aangebouwd op de begane grond;
– het betreft hier een zeer ruime woning. Koper dient echter wel rekening te houden met de nodige moderniseringswerkzaamheden;
– de woning is voorzien van dak- en spouwmuurisolatie;
– de woning is voorzien van houten kozijnen met dubbele beglazing;
– prima ligging in een verkeersarme, kindvriendelijke woonomgeving met ruim voldoende openbare parkeergelegenheid in de directe omgeving en nabij basisschool en diverse openbare speelgelegenheden.

Contact

Neem contact met ons op

0497 36 91 93 info@boxmakelaardij.nl

"*" geeft vereiste velden aan

Dit veld is bedoeld voor validatiedoeleinden en moet niet worden gewijzigd.
*
*
*
*