Klaproosstraat 22
Omschrijving
Deze instapklare, moderne afgewerkte woning combineert ruimte, comfort en een prachtige locatie nabij het centrum in een gewilde woonomgeving. De woning biedt maar liefst 140 m² aan woonoppervlakte onderverdeeld in 4 ruime slaapkamers, een luxe badkamer en een royaal woongedeelte. De privacy biedende, onderhoudsvriendelijk ingerichte achtertuin beschikt over een schitterende overkapping en een volledig geïsoleerde berging. Deze woning biedt volop rust en ruimte voor het gehele gezin, zo biedt de omgeving verschillende speeltuinen en groenvoorzieningen.
Een unieke kans voor wie geen zin heeft in klussen en direct wil genieten!
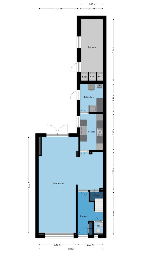
Begane grond
Entree
Via de groene, maar toch onderhoudsvriendelijke voortuin bereik je de voordeur. Hierachter schuilt een ruime entree met toegang tot de toiletruimte met hangcloset en fonteintje, de vernieuwde meterkast (voorzien van glasvezel) en de woonkamer. De trappenpartij naar de eerste verdieping is afgewerkt met sfeervolle zijverlichting.
Woonkamer
Wauw, wat een heerlijke ruimte! Door de aanbouw aan de achterzijde met openslaande tuindeuren is hier een heerlijk ruim woongedeelte ontstaan. Aan de voorzijde tref je een ruime zithoek met inbouwspots, aansluiting voor een houtkachel en een zonnescreen. Aan de tuinzijde beschik je over een ruim eetgedeelte waar openslaande deuren zorgen voor een prettige verbinding met buiten. Er is voldoende ruimte voor een eettafel voor 6 tot 8 personen, een speelhoek voor de kinderen én een comfortabele zithoek waar je heerlijk kunt ontspannen. Tevens is er toegang tot een praktische trapkast. De ruimte is afgewerkt met een massief eiken houten vloer, strakke stucwerk wanden en strakke stucwerk plafonds.
Keuken
In dubbele wandopstelling geplaatste, houtlook keukeninrichting met 5-pits gasfornuis, brede afzuigkap, oven, vaatwasser, inbouwspots en tegelvloer. Het RVS werkblad en achterwand maken de keuken erg praktisch in gebruik. Vanuit hier heb je toegang tot de bijkeuken.
Bijkeuken
Het fijne aan deze woning is dat er een ruime, half betegelde bijkeuken aanwezig is met de aansluitingen voor het witgoed, de Cv-installatie (Remeha, 2015) en een keukenblok met warm- en koudwater.
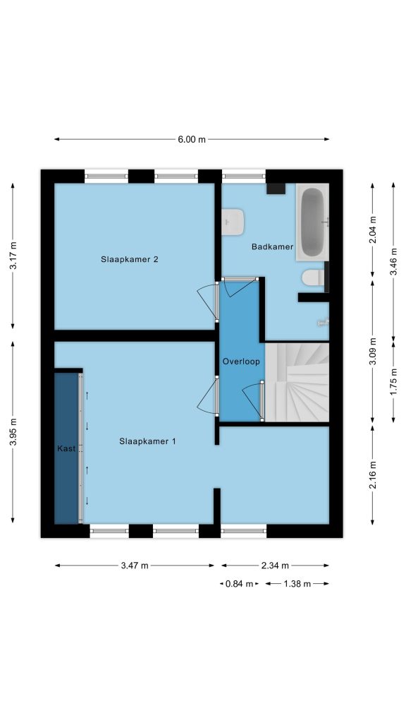
Eerste verdieping
Via de vaste trap bereik je de overloop. De overloop is zeer ruim van opzet en biedt toegang tot de 2 ruime slaapkamers, fraaie badkamer en vaste trap naar de tweede verdieping. De gehele eerste verdieping is afgewerkt met een prachtige massief houten vloer, strakke stucwerk wanden en strakke stucwerk plafonds met lichtspots. Daarnaast beschikken alle kamers over draai-kiep kozijnen met zonnescreens.
Slaapkamers
Beide slaapkamers zijn voorzien van massief eiken vloeren, screens, inbouwspots en draai-kiepramen. De ruime master bedroom beschikt over een grote inbouw kledingkast én een kleedkamer voorzien van een inbouwkast en een vaste spiegel.
Badkamer
De hoogwaardige afwerking wordt doorgetrokken in de prachtige, zeer ruime badkamer welke over alle denkbare luxe en comfort beschikt. Zo is er een groot bubbelbad, ruime inloopdouche met regen- en handdouche, hangcloset, designradiator en een extra brede wastafel aanwezig. De ruimte wordt geventileerd middels de mechanische afzuiging. Tevens is er een draai-kiep kozijnen met zonnescreen aanwezig voor de natuurlijke ventilatie.
Tweede verdieping
Middels vaste trap te bereiken zeer ruime overloop met toegang tot twee slaapkamers en vlizo trap naar de bergzolder. Onder de schuine kanten zijn praktische inbouwkasten geplaatst. Daarnaast is de overloop voorzien van een airco-unit en een wastafel. Ook deze verdieping is weer afgewerkt met een massief houten vloer, stucwerk wanden en stucwerk plafonds met spots. Beide slaapkamers zijn, door de geplaatste dakkapel, ruim van opzet en bieden plaats aan een tweepersoonsbed met kastenwand. Onder de schuine kanten zijn inbouwkasten aanwezig en beide kamers zijn voorzien van zonnescreens.
Exterieur
Achtertuin
Onderhoudsvriendelijke, privacy biedende achtertuin met strak betegeld terras, eigen achterom en fraai overdekt terras voorzien van inbouwspots. De tuin is op het zonnige zuidwesten gelegen zodat je hier de gehele middag en avond kan genieten van de zon. Daarnaast heb je toegang tot de volledig geïsoleerde berging uitgerust met een tegelvloer, elektra en een inbouwkast.
Voortuin
De voortuin is onderhoudsvriendelijk aangelegd met strakke tegels en is goed onderhouden. De voortuin is voorzien van leibomen, een buitenkraantje en drie borders met vaste beplanting. Parkeergelegenheid is er volop in de omgeving.
Algemeen:
– Volledig instapklare en verrassend ruime gezinswoning
– Maar liefst 140 m² woonoppervlakte
– De woning is fors uitgebreid door de aanbouw op de begane grond en opbouw van de tweede verdieping
– Maar liefst 4 ruime slaapkamers
– Voorzien van hardhouten kozijnen met HR++ beglazing (2de verdieping dubbele beglazing)
– De gehele woning is afgewerkt met strakke stucwerk wanden en plafonds
– Achtertuin met eigen achterom en geïsoleerde berging
– Nagenoeg de gehele woning is voorzien van massief eiken vloeren
– Grotendeels is de woning voorzien van zonnescreens
– 2 Dakkapellen op de 2e verdieping voor extra ruimte
– Airconditioning (koelen + verwarmen) op de 2e verdieping
– Onderhoudsvriendelijke achtertuin met terras en spots
In rustige straat, nabij het centrum gelegen
– Gelegen nabij winkels, horecagelegenheden en scholen
– Zeer kindvriendelijke buurt met groen en speelpleintjes
– Ruim voldoende parkeergelegenheid voor de deur en in de omgeving.
Kenmerken
- Woonoppervlakte: 140 m2
- Perceeloppervlakte: 175 m2
- Slaapkamers: 4 kamers
- Bouwjaar: 1967
Kenmerken
Overdracht
- Woonoppervlakte: 140 m2
- Perceeloppervlakte: 175 m2
- Inhoud: 545 m3
- Status: Verkocht
- Energielabel: C
Bouw
- Ligging: Aan rustige weg, In woonwijk, ,
- Kamers: 6
- Slaapkamers: 4 kamers
- Soort woning: Eengezinswoning
- Type: Tussenwoning
- Type dak: Zadeldak
Omschrijving
Deze instapklare, moderne afgewerkte woning combineert ruimte, comfort en een prachtige locatie nabij het centrum in een gewilde woonomgeving. De woning biedt maar liefst 140 m² aan woonoppervlakte onderverdeeld in 4 ruime slaapkamers, een luxe badkamer en een royaal woongedeelte. De privacy biedende, onderhoudsvriendelijk ingerichte achtertuin beschikt over een schitterende overkapping en een volledig geïsoleerde berging. Deze woning biedt volop rust en ruimte voor het gehele gezin, zo biedt de omgeving verschillende speeltuinen en groenvoorzieningen.
Een unieke kans voor wie geen zin heeft in klussen en direct wil genieten!
Begane grond
Entree
Via de groene, maar toch onderhoudsvriendelijke voortuin bereik je de voordeur. Hierachter schuilt een ruime entree met toegang tot de toiletruimte met hangcloset en fonteintje, de vernieuwde meterkast (voorzien van glasvezel) en de woonkamer. De trappenpartij naar de eerste verdieping is afgewerkt met sfeervolle zijverlichting.
Woonkamer
Wauw, wat een heerlijke ruimte! Door de aanbouw aan de achterzijde met openslaande tuindeuren is hier een heerlijk ruim woongedeelte ontstaan. Aan de voorzijde tref je een ruime zithoek met inbouwspots, aansluiting voor een houtkachel en een zonnescreen. Aan de tuinzijde beschik je over een ruim eetgedeelte waar openslaande deuren zorgen voor een prettige verbinding met buiten. Er is voldoende ruimte voor een eettafel voor 6 tot 8 personen, een speelhoek voor de kinderen én een comfortabele zithoek waar je heerlijk kunt ontspannen. Tevens is er toegang tot een praktische trapkast. De ruimte is afgewerkt met een massief eiken houten vloer, strakke stucwerk wanden en strakke stucwerk plafonds.
Keuken
In dubbele wandopstelling geplaatste, houtlook keukeninrichting met 5-pits gasfornuis, brede afzuigkap, oven, vaatwasser, inbouwspots en tegelvloer. Het RVS werkblad en achterwand maken de keuken erg praktisch in gebruik. Vanuit hier heb je toegang tot de bijkeuken.
Bijkeuken
Het fijne aan deze woning is dat er een ruime, half betegelde bijkeuken aanwezig is met de aansluitingen voor het witgoed, de Cv-installatie (Remeha, 2015) en een keukenblok met warm- en koudwater.
Eerste verdieping
Via de vaste trap bereik je de overloop. De overloop is zeer ruim van opzet en biedt toegang tot de 2 ruime slaapkamers, fraaie badkamer en vaste trap naar de tweede verdieping. De gehele eerste verdieping is afgewerkt met een prachtige massief houten vloer, strakke stucwerk wanden en strakke stucwerk plafonds met lichtspots. Daarnaast beschikken alle kamers over draai-kiep kozijnen met zonnescreens.
Slaapkamers
Beide slaapkamers zijn voorzien van massief eiken vloeren, screens, inbouwspots en draai-kiepramen. De ruime master bedroom beschikt over een grote inbouw kledingkast én een kleedkamer voorzien van een inbouwkast en een vaste spiegel.
Badkamer
De hoogwaardige afwerking wordt doorgetrokken in de prachtige, zeer ruime badkamer welke over alle denkbare luxe en comfort beschikt. Zo is er een groot bubbelbad, ruime inloopdouche met regen- en handdouche, hangcloset, designradiator en een extra brede wastafel aanwezig. De ruimte wordt geventileerd middels de mechanische afzuiging. Tevens is er een draai-kiep kozijnen met zonnescreen aanwezig voor de natuurlijke ventilatie.
Tweede verdieping
Middels vaste trap te bereiken zeer ruime overloop met toegang tot twee slaapkamers en vlizo trap naar de bergzolder. Onder de schuine kanten zijn praktische inbouwkasten geplaatst. Daarnaast is de overloop voorzien van een airco-unit en een wastafel. Ook deze verdieping is weer afgewerkt met een massief houten vloer, stucwerk wanden en stucwerk plafonds met spots. Beide slaapkamers zijn, door de geplaatste dakkapel, ruim van opzet en bieden plaats aan een tweepersoonsbed met kastenwand. Onder de schuine kanten zijn inbouwkasten aanwezig en beide kamers zijn voorzien van zonnescreens.
Exterieur
Achtertuin
Onderhoudsvriendelijke, privacy biedende achtertuin met strak betegeld terras, eigen achterom en fraai overdekt terras voorzien van inbouwspots. De tuin is op het zonnige zuidwesten gelegen zodat je hier de gehele middag en avond kan genieten van de zon. Daarnaast heb je toegang tot de volledig geïsoleerde berging uitgerust met een tegelvloer, elektra en een inbouwkast.
Voortuin
De voortuin is onderhoudsvriendelijk aangelegd met strakke tegels en is goed onderhouden. De voortuin is voorzien van leibomen, een buitenkraantje en drie borders met vaste beplanting. Parkeergelegenheid is er volop in de omgeving.
Algemeen:
– Volledig instapklare en verrassend ruime gezinswoning
– Maar liefst 140 m² woonoppervlakte
– De woning is fors uitgebreid door de aanbouw op de begane grond en opbouw van de tweede verdieping
– Maar liefst 4 ruime slaapkamers
– Voorzien van hardhouten kozijnen met HR++ beglazing (2de verdieping dubbele beglazing)
– De gehele woning is afgewerkt met strakke stucwerk wanden en plafonds
– Achtertuin met eigen achterom en geïsoleerde berging
– Nagenoeg de gehele woning is voorzien van massief eiken vloeren
– Grotendeels is de woning voorzien van zonnescreens
– 2 Dakkapellen op de 2e verdieping voor extra ruimte
– Airconditioning (koelen + verwarmen) op de 2e verdieping
– Onderhoudsvriendelijke achtertuin met terras en spots
In rustige straat, nabij het centrum gelegen
– Gelegen nabij winkels, horecagelegenheden en scholen
– Zeer kindvriendelijke buurt met groen en speelpleintjes
– Ruim voldoende parkeergelegenheid voor de deur en in de omgeving.