Vragen of afspraak maken?

Stuur ons een bericht op Whatsapp

Bekijk onze bedrijfsvideo Volg ons (5900)
Eersel

Steenstraat 4

Omschrijving

Verrassend ruime gezinswoning met 4 prima slaapkamers, luxe complete badkamer en privacy biedende achtertuin grenzend aan een openbare groenvoorziening! Deze goed onderhouden tussenwoning aan de Steenstraat 4 in Eersel biedt maar liefst 123 m² woonoppervlakte, verdeeld over drie volwaardige woonlagen met betonnen verdiepingsvloeren. De woning is verrassend ruim, praktisch ingedeeld en ideaal voor gezinnen die comfortabel willen wonen in een rustige, groene woonomgeving.

Indeling:

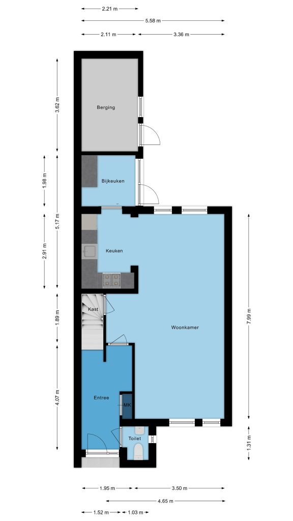
Begane grond:

Via de nette voortuin bereik je de entree met hal voorzien van een laminaatvloer, gedeeltelijk betegeld toilet met fonteintje, vernieuwde meterkast (8 groepen en 2 aardlekschakelaars), toegang tot de woonkamer en trapopgang naar de eerste verdieping.

De riante woonkamer strekt zich uit over de volle diepte van de woning en is heerlijk licht dankzij de grote raampartijen aan zowel de voor- als achterzijde. Er is meer dan genoeg ruimte voor een royale zithoek en een grote eettafel. De ruimte is afgewerkt met een laminaatvloer, grotendeels stucwerkwanden en een stucwerkplafond. De praktische trapkast zorgt voor voldoende opbergruimte.

De halfopen keuken bevindt zich aan de achterzijde en is praktisch ingericht met een keukeninrichting in hoekopstelling, volop kastruimte en een prettige verbinding met de woonkamer. De keuken is voorzien van een gaskookplaat, afzuigkap, vaatwasser, koelkast en combi-magnetron.

Aansluitend vindt je een portaal/bijkeuken van waar uit de achtertuin bereikbaar is.

Eerste verdieping:

Overloop met een vinylvloer, toegang tot drie slaapkamers en de badkamer, alsmede een vaste trapopgang naar de 2e verdieping.

Op deze verdieping bevinden zich drie prima slaapkamers, elk met een prettige lichtinval en rechte wanden voor optimale indelingsvrijheid. De slaapkamers zijn allen voorzien van een vinylvloer, stucwerk- en/of behangwanden en een stucwerkplafond.

De volledig betegelde, luxe badkamer is fraai afgewerkt met hoogwaardige materialen en voorzien van een ruime douche met sunshower, ligbad, wandcloset, dubbel wastafelmeubel en een designradiator. Een heerlijke plek om de dag ontspannen te beginnen of juist af te sluiten.

Tweede verdieping:

Via een vaste trapopgang bereik je de tweede verdieping. De royale voorzolder biedt volop bergruimte, een Velux dakvenster en plaats voor de c.v.-ketel en wasmachine.

Aangrenzend bevindt zich de grote vierde slaapkamer, voorzien van een Velux dakvenster waardoor er veel licht binnenvalt.

Exterieur:

Keurig aangelegde voortuin met diverse beplanting en een pad met toegang tot de voordeur.

De achtertuin is netjes aangelegd, onderhoudsvriendelijk en biedt volop privacy. Dankzij de ligging aan de achterzijde grenzend aan een openbare groenvoorziening, geniet je van rust en een vrij uitzicht. In de tuin bevindt zich een aanpandige berging, ideaal voor fietsen, gereedschap of tuinkussens. Deze tuin is een heerlijke plek om in de zomer buiten te eten, te ontspannen of te genieten van het zonnetje.

Algemeen:
– bouwjaar 1979.
– perceeloppervlakte 169 m².
– inhoud 472 m³.
– gebruiksoppervlakte wonen 123 m².
– overige inpandige ruimte 8 m².
– de woning is voorzien van dakisolatie.
– de woning is voorzien van houten kozijnen, nagenoeg volledig met isolerende beglazing.
– verwarming en warmwatervoorziening middels een Remeha c.v. combi-ketel (bouwjaar 2009).
– betonnen verdiepingsvloeren voor extra comfort en duurzaamheid.
– deze woning ligt in een rustige woonomgeving op een steenworp afstand van het Heibloempark en basisschool, ideaal voor gezinnen met kinderen. Bovendien ben je binnen enkele minuten in het gezellige centrum van Eersel met winkels, horeca en overige centrumvoorzieningen binnen handbereik.

Kenmerken

  • Woonoppervlakte: 123 m2
  • Perceeloppervlakte: 169 m2
  • Slaapkamers: 4 kamers
  • Bouwjaar: 1979

Kenmerken

Overdracht

  • Woonoppervlakte: 123 m2
  • Perceeloppervlakte: 169 m2
  • Inhoud: 472 m3
  • Status: Verkocht
  • Energielabel: C

Bouw

  • Ligging: Aan rustige weg, In woonwijk, ,
  • Kamers: 5
  • Slaapkamers: 4 kamers
  • Soort woning: Eengezinswoning
  • Type: Tussenwoning
  • Type dak: Zadeldak

Omschrijving

Verrassend ruime gezinswoning met 4 prima slaapkamers, luxe complete badkamer en privacy biedende achtertuin grenzend aan een openbare groenvoorziening! Deze goed onderhouden tussenwoning aan de Steenstraat 4 in Eersel biedt maar liefst 123 m² woonoppervlakte, verdeeld over drie volwaardige woonlagen met betonnen verdiepingsvloeren. De woning is verrassend ruim, praktisch ingedeeld en ideaal voor gezinnen die comfortabel willen wonen in een rustige, groene woonomgeving.

Indeling:

Begane grond:

Via de nette voortuin bereik je de entree met hal voorzien van een laminaatvloer, gedeeltelijk betegeld toilet met fonteintje, vernieuwde meterkast (8 groepen en 2 aardlekschakelaars), toegang tot de woonkamer en trapopgang naar de eerste verdieping.

De riante woonkamer strekt zich uit over de volle diepte van de woning en is heerlijk licht dankzij de grote raampartijen aan zowel de voor- als achterzijde. Er is meer dan genoeg ruimte voor een royale zithoek en een grote eettafel. De ruimte is afgewerkt met een laminaatvloer, grotendeels stucwerkwanden en een stucwerkplafond. De praktische trapkast zorgt voor voldoende opbergruimte.

De halfopen keuken bevindt zich aan de achterzijde en is praktisch ingericht met een keukeninrichting in hoekopstelling, volop kastruimte en een prettige verbinding met de woonkamer. De keuken is voorzien van een gaskookplaat, afzuigkap, vaatwasser, koelkast en combi-magnetron.

Aansluitend vindt je een portaal/bijkeuken van waar uit de achtertuin bereikbaar is.

Eerste verdieping:

Overloop met een vinylvloer, toegang tot drie slaapkamers en de badkamer, alsmede een vaste trapopgang naar de 2e verdieping.

Op deze verdieping bevinden zich drie prima slaapkamers, elk met een prettige lichtinval en rechte wanden voor optimale indelingsvrijheid. De slaapkamers zijn allen voorzien van een vinylvloer, stucwerk- en/of behangwanden en een stucwerkplafond.

De volledig betegelde, luxe badkamer is fraai afgewerkt met hoogwaardige materialen en voorzien van een ruime douche met sunshower, ligbad, wandcloset, dubbel wastafelmeubel en een designradiator. Een heerlijke plek om de dag ontspannen te beginnen of juist af te sluiten.

Tweede verdieping:

Via een vaste trapopgang bereik je de tweede verdieping. De royale voorzolder biedt volop bergruimte, een Velux dakvenster en plaats voor de c.v.-ketel en wasmachine.

Aangrenzend bevindt zich de grote vierde slaapkamer, voorzien van een Velux dakvenster waardoor er veel licht binnenvalt.

Exterieur:

Keurig aangelegde voortuin met diverse beplanting en een pad met toegang tot de voordeur.

De achtertuin is netjes aangelegd, onderhoudsvriendelijk en biedt volop privacy. Dankzij de ligging aan de achterzijde grenzend aan een openbare groenvoorziening, geniet je van rust en een vrij uitzicht. In de tuin bevindt zich een aanpandige berging, ideaal voor fietsen, gereedschap of tuinkussens. Deze tuin is een heerlijke plek om in de zomer buiten te eten, te ontspannen of te genieten van het zonnetje.

Algemeen:
– bouwjaar 1979.
– perceeloppervlakte 169 m².
– inhoud 472 m³.
– gebruiksoppervlakte wonen 123 m².
– overige inpandige ruimte 8 m².
– de woning is voorzien van dakisolatie.
– de woning is voorzien van houten kozijnen, nagenoeg volledig met isolerende beglazing.
– verwarming en warmwatervoorziening middels een Remeha c.v. combi-ketel (bouwjaar 2009).
– betonnen verdiepingsvloeren voor extra comfort en duurzaamheid.
– deze woning ligt in een rustige woonomgeving op een steenworp afstand van het Heibloempark en basisschool, ideaal voor gezinnen met kinderen. Bovendien ben je binnen enkele minuten in het gezellige centrum van Eersel met winkels, horeca en overige centrumvoorzieningen binnen handbereik.

Contact

Neem contact met ons op

0497 36 91 93 info@boxmakelaardij.nl

"*" geeft vereiste velden aan

Dit veld is bedoeld voor validatiedoeleinden en moet niet worden gewijzigd.
    • *
      *
      *
    • *