Vragen of afspraak maken?

Stuur ons een bericht op Whatsapp

Bekijk onze bedrijfsvideo Volg ons (5900)
Hapert

Venbroek 28

Omschrijving

Aan een zeer rustige, verkeersarme straat op een steenworp afstand van het centrum van Hapert ligt deze verrassend ruime en keurig onderhouden woning met maar liefst 185 m² gebruiksoppervlakte. Deze mooi ingedeelde woning beschikt over een slaap- en badkamer op de begane grond en nog eens 3 ruime slaapkamers, een 2e badkamer en een riante multifunctionele ruimte op de vide. Kers op de taart is de brede, volop privacy biedende achtertuin welke maar liefst 24 meter diep is. Het complete ontwerp van interieur tot tuin is gerealiseerd door een architect, wat resulteert in een elegante, doordachte en stijlvolle woning met veel ruimte en licht.

Indeling:

Begane grond:

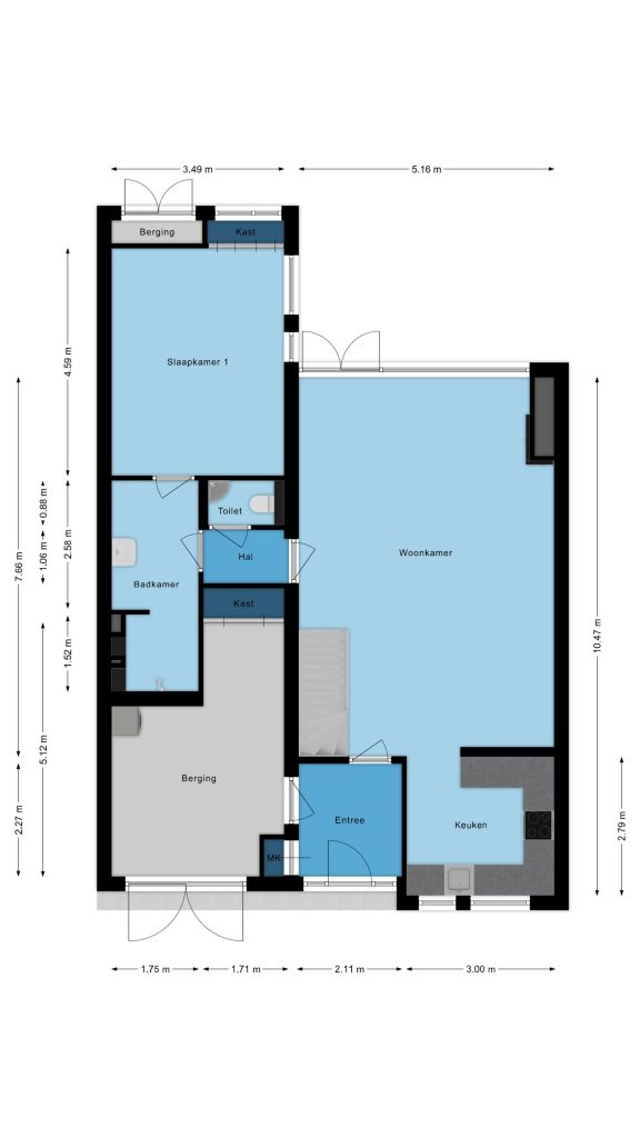
Je komt binnen in een nette hal met tegelvloer, vernieuwde meterkast (9 groepen, krachtstroom en 3 aardlekschakelaars), alsmede toegang tot de woonkamer en inpandige garage.

Handige inpandige garage met een dubbele inbouwkast, wasmachine-aansluiting en openslaande deuren aan de voorzijde.

Open keuken aan de voorzijde van de woning voorzien van een tegelvloer, inbouwspots en een neutrale SieMatic keukeninrichting in U-opstelling voorzien van een inductiekookplaat, afzuigkap, vaatwasser, oven en koelkast. Het hoge plafond boven de keuken is voorzien van 2 Velux dakvensters met op afstand bedienbare zonwering. Deze dakvensters zorgen voor een aangename extra lichtinval van bovenaf.

Riante en zeer brede woonkamer voorzien van een tegelvloer met vloerverwarming en met ingelegd tapijt, schouw met gashaard met afstandsbediening, openslaande tuindeuren met ingebouwde schuifhorren aan de achterzijde en een hardhouten trapopgang met toegang tot de 1e verdieping.

Portaal met tegelvloer en gedeeltelijk betegelde toiletruimte met wandcloset met geïntegreerde bidetfunctie en fonteintje. Het portaal biedt daarnaast toegang tot de badkamer.

Gedeeltelijk betegelde Villeroy & Boch badkamer voorzien van een grote inloopdouche, wastafel, designradiator en doorgang naar de naastgelegen slaapkamer.

De riante slaapkamer is voorzien van vloerbedekking en beschikt over ingebouwde kasten en een mooi uitzicht over de diepe achtertuin.

1e verdieping:

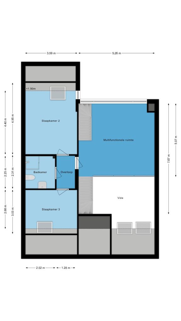
Via de hardhouten trapopgang kom je boven op een multifunctioneel te gebruiken ruimte met vloerbedekking en een hardhouten trapopgang naar de 2e verdieping. Door de vide heeft u vanuit deze ruimte rechtstreeks contact met de leefruimte op de begane grond. Het betreft hier een riante ruimte welke perfect kan fungeren als werkkamer of speelkamer.

Via de naastgelegen overloop is er toegang tot 2 slaapkamers en de 2e badkamer.

De 2e badkamer is volledig betegeld en voorzien van een douchecabine, toilet en wastafel.

Slaapkamer 2 en 3 zijn beide ruim van opzet en voorzien van vloerbedekking, lichte wandafwerking, houten plafond en een Velux dakvenster.

2e verdieping:

Middels een vaste hardhouten trapopgang bereikbare overloop met vloerbedekking en toegang tot een riante bergzolder met opstelling van de c.v.-installatie.

Zeer grote 4e slaapkamer met vloerbedekking, wastafel en 3 Velux dakvensters.

Exterieur:

Voortuin met diverse beplanting en parkeergelegenheid voor 1 auto.

Circa 24 meter diepe, volop privacy biedende achtertuin met sfeervolle tuinverlichting, gebakken klinkerbestrating, vijverpartij, diverse beplanting, riante terrasoverkapping, dubbele inbouwkast in de achtergevel en achterom met poort op de achterzijde van het perceel welke toegang biedt tot het achtergelegen zandpad.

Algemeen:

– bouwjaar 1978.
– perceeloppervlakte 344 m².
– inhoud 739 m³.
– woonoppervlakte 185 m².
– overige inpandige ruimte 16 m².
– de woning is voorzien van dak-, vloer- en vermoedelijk spouwmuurisolatie.
– de woning is voorzien van houten kozijnen, nagenoeg geheel met isolerende beglazing.
– verwarming en warmwatervoorziening middels een Remeha c.v. combi-ketel (bouwjaar 2019).
– woonkamer, keuken en badkamer op de begane grond zijn voorzien van vloerverwarming.
– de woning is voorzien van 9 zonnepanelen, geplaatst in 2023.
– het betreft hier een verrassend ruime, leuk ingedeelde woning welke meer ruimte biedt dan de eerste indruk aan de buitenzijde doet vermoeden.
– fijne ligging in een verkeersarme, kindvriendelijke woonomgeving op korte afstand van de centrumvoorzieningen en met een speeltuintje op slechts 200 meter afstand. De oprit van de A67 is binnen 2 autominuten bereikbaar, waardoor onder andere ASML, High Tech Campus en het Maxima Medisch Centrum binnen 15-20 autominuten te bereiken zijn.

Kenmerken

  • Woonoppervlakte: 185 m2
  • Perceeloppervlakte: 344 m2
  • Slaapkamers: 4 kamers
  • Bouwjaar: 1978

Plattegrond (7)

Video

Kenmerken

Overdracht

  • Woonoppervlakte: 185 m2
  • Perceeloppervlakte: 344 m2
  • Inhoud: 739 m3
  • Status: Verkocht
  • Energielabel: A

Bouw

  • Ligging: Aan rustige weg, In woonwijk, ,
  • Kamers: 6
  • Slaapkamers: 4 kamers
  • Soort woning: Eengezinswoning
  • Type: Tussenwoning
  • Type dak: Zadeldak

Omschrijving

Aan een zeer rustige, verkeersarme straat op een steenworp afstand van het centrum van Hapert ligt deze verrassend ruime en keurig onderhouden woning met maar liefst 185 m² gebruiksoppervlakte. Deze mooi ingedeelde woning beschikt over een slaap- en badkamer op de begane grond en nog eens 3 ruime slaapkamers, een 2e badkamer en een riante multifunctionele ruimte op de vide. Kers op de taart is de brede, volop privacy biedende achtertuin welke maar liefst 24 meter diep is. Het complete ontwerp van interieur tot tuin is gerealiseerd door een architect, wat resulteert in een elegante, doordachte en stijlvolle woning met veel ruimte en licht.

Indeling:

Begane grond:

Je komt binnen in een nette hal met tegelvloer, vernieuwde meterkast (9 groepen, krachtstroom en 3 aardlekschakelaars), alsmede toegang tot de woonkamer en inpandige garage.

Handige inpandige garage met een dubbele inbouwkast, wasmachine-aansluiting en openslaande deuren aan de voorzijde.

Open keuken aan de voorzijde van de woning voorzien van een tegelvloer, inbouwspots en een neutrale SieMatic keukeninrichting in U-opstelling voorzien van een inductiekookplaat, afzuigkap, vaatwasser, oven en koelkast. Het hoge plafond boven de keuken is voorzien van 2 Velux dakvensters met op afstand bedienbare zonwering. Deze dakvensters zorgen voor een aangename extra lichtinval van bovenaf.

Riante en zeer brede woonkamer voorzien van een tegelvloer met vloerverwarming en met ingelegd tapijt, schouw met gashaard met afstandsbediening, openslaande tuindeuren met ingebouwde schuifhorren aan de achterzijde en een hardhouten trapopgang met toegang tot de 1e verdieping.

Portaal met tegelvloer en gedeeltelijk betegelde toiletruimte met wandcloset met geïntegreerde bidetfunctie en fonteintje. Het portaal biedt daarnaast toegang tot de badkamer.

Gedeeltelijk betegelde Villeroy & Boch badkamer voorzien van een grote inloopdouche, wastafel, designradiator en doorgang naar de naastgelegen slaapkamer.

De riante slaapkamer is voorzien van vloerbedekking en beschikt over ingebouwde kasten en een mooi uitzicht over de diepe achtertuin.

1e verdieping:

Via de hardhouten trapopgang kom je boven op een multifunctioneel te gebruiken ruimte met vloerbedekking en een hardhouten trapopgang naar de 2e verdieping. Door de vide heeft u vanuit deze ruimte rechtstreeks contact met de leefruimte op de begane grond. Het betreft hier een riante ruimte welke perfect kan fungeren als werkkamer of speelkamer.

Via de naastgelegen overloop is er toegang tot 2 slaapkamers en de 2e badkamer.

De 2e badkamer is volledig betegeld en voorzien van een douchecabine, toilet en wastafel.

Slaapkamer 2 en 3 zijn beide ruim van opzet en voorzien van vloerbedekking, lichte wandafwerking, houten plafond en een Velux dakvenster.

2e verdieping:

Middels een vaste hardhouten trapopgang bereikbare overloop met vloerbedekking en toegang tot een riante bergzolder met opstelling van de c.v.-installatie.

Zeer grote 4e slaapkamer met vloerbedekking, wastafel en 3 Velux dakvensters.

Exterieur:

Voortuin met diverse beplanting en parkeergelegenheid voor 1 auto.

Circa 24 meter diepe, volop privacy biedende achtertuin met sfeervolle tuinverlichting, gebakken klinkerbestrating, vijverpartij, diverse beplanting, riante terrasoverkapping, dubbele inbouwkast in de achtergevel en achterom met poort op de achterzijde van het perceel welke toegang biedt tot het achtergelegen zandpad.

Algemeen:

– bouwjaar 1978.
– perceeloppervlakte 344 m².
– inhoud 739 m³.
– woonoppervlakte 185 m².
– overige inpandige ruimte 16 m².
– de woning is voorzien van dak-, vloer- en vermoedelijk spouwmuurisolatie.
– de woning is voorzien van houten kozijnen, nagenoeg geheel met isolerende beglazing.
– verwarming en warmwatervoorziening middels een Remeha c.v. combi-ketel (bouwjaar 2019).
– woonkamer, keuken en badkamer op de begane grond zijn voorzien van vloerverwarming.
– de woning is voorzien van 9 zonnepanelen, geplaatst in 2023.
– het betreft hier een verrassend ruime, leuk ingedeelde woning welke meer ruimte biedt dan de eerste indruk aan de buitenzijde doet vermoeden.
– fijne ligging in een verkeersarme, kindvriendelijke woonomgeving op korte afstand van de centrumvoorzieningen en met een speeltuintje op slechts 200 meter afstand. De oprit van de A67 is binnen 2 autominuten bereikbaar, waardoor onder andere ASML, High Tech Campus en het Maxima Medisch Centrum binnen 15-20 autominuten te bereiken zijn.

Documenten

Selecteer onderstaande documenten om ze te downloaden

Contact

Neem contact met ons op

0497 36 91 93 info@boxmakelaardij.nl

"*" geeft vereiste velden aan

Dit veld is bedoeld voor validatiedoeleinden en moet niet worden gewijzigd.
    • *
      *
      *
    • *