Vragen of afspraak maken?

Stuur ons een bericht op Whatsapp

Bekijk onze bedrijfsvideo Volg ons (5900)
Hapert

Akkerwinde 55

Omschrijving

Akkerwinde 55: een royale twee-onder-één kapwoning van 144 m² woonoppervlak, met maar liefst 5 slaapkamers, een luxe badkamer (2021), een uitgebouwde keukenruimte, een grote, inpandige garage met eigen oprit en een fraai aangelegde, vrije achtertuin. De woning is perfect onderhouden en is daarnaast volledig geïsoleerd en voorzien van isolerende beglazing (grotendeels HR++). Dit alles gelegen in een rustige, kindvriendelijke woonwijk en pal tegenover een groen speelveld: een ideale gezinswoning met veel leefruimte én comfort.

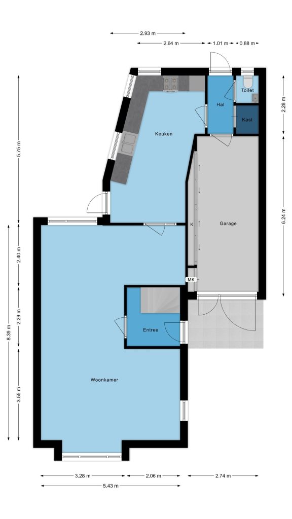
Begane grond

Entree
Via eigen oprit bereik je de overdekte entree met hierachter een fijne hal voorzien van moderne PVC vloer, strakke stucwerk wanden en plafonds, een garderobe-nis, een trapopgang naar de eerste verdieping en toegang tot het woongedeelte.

Woonkamer
De zeer ruime woonkamer, waar de erker aan de voorzijde en het extra zijraam zorgen voor een prachtige lichtinval. De kamer is afgewerkt met een houtlook pvc vloer, strakke stucwerk wanden en een stucwerk plafond, wat samen een moderne en frisse uitstraling geeft. Extra fijn is de praktische hoek, ideaal in te richten als speelkamer of thuiswerkplek. Een grote hoekbank en een fijne 6 -persoons eettafel misstaan hier zeker niet!

Keuken
De aangebouwde keuken is voorzien van een lichtkoepel en meerdere raampartijen met uitzicht over de tuin, waardoor koken hier altijd in een lichte en prettige omgeving gebeurt. De zeer ruime, keurige in hoekopstelling geplaatste keukeninrichting is voorzien van een oven, vaatwasser, gasfornuis, afzuigkap en spoelbak met close-in boiler. De aanbouw is eveneens afgewerkt met dezelfde strakke PVC vloer met vloerverwarming.

Portaal & garage
Aansluitend bevindt zich een portaal met de luxe toiletruimte (2021), een bergkast en de doorgang naar de riante garage met eveneens een bergkast: volop bergruimte dus! De garage is eveneens goed afgewerkt met een chique tegelvloer en voorzien van openslaande deuren naar de oprit, de meterkast, verwarming, elektra en verwarming.

Eerste verdieping
Op de eerste verdieping tref je drie ruime slaapkamers, allen afgewerkt met een moderne laminaatvloer. Het fijne aan deze woning is dat alle drie de kamers van een goed formaat zijn waardoor je hier eenvoudig een master bedroom en twee volwaardige kinderkamers creëert.

Badkamer
De absolute eyecatcher is de in 2021 vernieuwde luxe badkamer, uitgevoerd met: een luxe antraciete tegelvloer, chique betonlook tegels en een prachtige in visgraat motief wandtegels. Daarnaast zijn alle moderne gemakken zoals een ligbad, inloopdouche met hand- en regendouche, hangcloset en dubbel badmeubel aanwezig. Een moderne badkamer waar elke dag een genietmoment wordt.

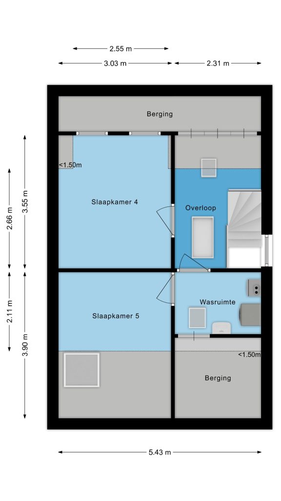
Tweede verdieping
De tweede verdieping is verrassend ruim door de dakkapel aan de achterzijde. Hier bevinden zich nog eens twee slaapkamers, beiden voorzien van een houtlook laminaatvloer. Daarnaast is er een aparte wasruimte met opstelplaats voor de wasapparatuur en de cv-ketel (Nefit, 2019). Bergruimte genoeg door de diverse vaste kasten onder de schuine kant.

Bergzolder
Via een vlizotrap bereik je nog een praktische bergzolder, perfect voor seizoensspullen en extra opslag.

Exterieur
De achtertuin is een absolute troef: volledig vrij gelegen en dus veel privacy. De tuin is fraai aangelegd met een strak betegeld terras, een gazon en diverse vaste beplanting. Dankzij de royale afmetingen is er altijd een plekje in de zon én in de schaduw te vinden.

Ligging
De woning ligt in een rustige woonwijk met enkel bestemmingsverkeer, ideaal voor gezinnen. Pal tegenover de woning bevindt zich een groen speelveld, zodat kinderen veilig en dichtbij kunnen spelen. Daarnaast zijn voorzieningen zoals winkels, scholen en sportfaciliteiten op korte afstand bereikbaar.

Bijzonderheden:

– Twee-onder-één kapwoning van 144 m² woonoppervlak
– 5 slaapkamers en een luxe badkamer (2021)
– Zeer ruime woonkamer met erker, zijraam en speelhoek/thuiswerkplek
– Moderne afwerking
– Royale keuken met lichtkoepel en uitzicht over de achtertuin
– Portaal met luxe toiletruimte (2021), bergkast en toegang tot grote garage
– Achtertuin volledig vrij gelegen, fraai en ruim aangelegd
– Rustige ligging pal tegenover groen speelveld
– Voorzien van het volledige isolatiepakket
– Definitief energielabel B
– Volledig voorzien van houten kozijnen met isolerende beglazing (grotendeels HR++, deels HR)

Akkerwinde 55 te Hapert is een complete gezinswoning waar ruimte, comfort en een fijne ligging samenkomen.

Kenmerken

  • Woonoppervlakte: 144 m2
  • Perceeloppervlakte: 262 m2
  • Slaapkamers: 5 kamers
  • Bouwjaar: 1988

Kenmerken

Overdracht

  • Woonoppervlakte: 144 m2
  • Perceeloppervlakte: 262 m2
  • Inhoud: 596 m3
  • Status: Verkocht
  • Energielabel: B

Bouw

  • Ligging: In woonwijk, , ,
  • Kamers: 8
  • Slaapkamers: 5 kamers
  • Soort woning: Eengezinswoning
  • Type: Twee onder een kapwoning
  • Type dak: Zadeldak

Omschrijving

Akkerwinde 55: een royale twee-onder-één kapwoning van 144 m² woonoppervlak, met maar liefst 5 slaapkamers, een luxe badkamer (2021), een uitgebouwde keukenruimte, een grote, inpandige garage met eigen oprit en een fraai aangelegde, vrije achtertuin. De woning is perfect onderhouden en is daarnaast volledig geïsoleerd en voorzien van isolerende beglazing (grotendeels HR++). Dit alles gelegen in een rustige, kindvriendelijke woonwijk en pal tegenover een groen speelveld: een ideale gezinswoning met veel leefruimte én comfort.

Begane grond

Entree
Via eigen oprit bereik je de overdekte entree met hierachter een fijne hal voorzien van moderne PVC vloer, strakke stucwerk wanden en plafonds, een garderobe-nis, een trapopgang naar de eerste verdieping en toegang tot het woongedeelte.

Woonkamer
De zeer ruime woonkamer, waar de erker aan de voorzijde en het extra zijraam zorgen voor een prachtige lichtinval. De kamer is afgewerkt met een houtlook pvc vloer, strakke stucwerk wanden en een stucwerk plafond, wat samen een moderne en frisse uitstraling geeft. Extra fijn is de praktische hoek, ideaal in te richten als speelkamer of thuiswerkplek. Een grote hoekbank en een fijne 6 -persoons eettafel misstaan hier zeker niet!

Keuken
De aangebouwde keuken is voorzien van een lichtkoepel en meerdere raampartijen met uitzicht over de tuin, waardoor koken hier altijd in een lichte en prettige omgeving gebeurt. De zeer ruime, keurige in hoekopstelling geplaatste keukeninrichting is voorzien van een oven, vaatwasser, gasfornuis, afzuigkap en spoelbak met close-in boiler. De aanbouw is eveneens afgewerkt met dezelfde strakke PVC vloer met vloerverwarming.

Portaal & garage
Aansluitend bevindt zich een portaal met de luxe toiletruimte (2021), een bergkast en de doorgang naar de riante garage met eveneens een bergkast: volop bergruimte dus! De garage is eveneens goed afgewerkt met een chique tegelvloer en voorzien van openslaande deuren naar de oprit, de meterkast, verwarming, elektra en verwarming.

Eerste verdieping
Op de eerste verdieping tref je drie ruime slaapkamers, allen afgewerkt met een moderne laminaatvloer. Het fijne aan deze woning is dat alle drie de kamers van een goed formaat zijn waardoor je hier eenvoudig een master bedroom en twee volwaardige kinderkamers creëert.

Badkamer
De absolute eyecatcher is de in 2021 vernieuwde luxe badkamer, uitgevoerd met: een luxe antraciete tegelvloer, chique betonlook tegels en een prachtige in visgraat motief wandtegels. Daarnaast zijn alle moderne gemakken zoals een ligbad, inloopdouche met hand- en regendouche, hangcloset en dubbel badmeubel aanwezig. Een moderne badkamer waar elke dag een genietmoment wordt.

Tweede verdieping
De tweede verdieping is verrassend ruim door de dakkapel aan de achterzijde. Hier bevinden zich nog eens twee slaapkamers, beiden voorzien van een houtlook laminaatvloer. Daarnaast is er een aparte wasruimte met opstelplaats voor de wasapparatuur en de cv-ketel (Nefit, 2019). Bergruimte genoeg door de diverse vaste kasten onder de schuine kant.

Bergzolder
Via een vlizotrap bereik je nog een praktische bergzolder, perfect voor seizoensspullen en extra opslag.

Exterieur
De achtertuin is een absolute troef: volledig vrij gelegen en dus veel privacy. De tuin is fraai aangelegd met een strak betegeld terras, een gazon en diverse vaste beplanting. Dankzij de royale afmetingen is er altijd een plekje in de zon én in de schaduw te vinden.

Ligging
De woning ligt in een rustige woonwijk met enkel bestemmingsverkeer, ideaal voor gezinnen. Pal tegenover de woning bevindt zich een groen speelveld, zodat kinderen veilig en dichtbij kunnen spelen. Daarnaast zijn voorzieningen zoals winkels, scholen en sportfaciliteiten op korte afstand bereikbaar.

Bijzonderheden:

– Twee-onder-één kapwoning van 144 m² woonoppervlak
– 5 slaapkamers en een luxe badkamer (2021)
– Zeer ruime woonkamer met erker, zijraam en speelhoek/thuiswerkplek
– Moderne afwerking
– Royale keuken met lichtkoepel en uitzicht over de achtertuin
– Portaal met luxe toiletruimte (2021), bergkast en toegang tot grote garage
– Achtertuin volledig vrij gelegen, fraai en ruim aangelegd
– Rustige ligging pal tegenover groen speelveld
– Voorzien van het volledige isolatiepakket
– Definitief energielabel B
– Volledig voorzien van houten kozijnen met isolerende beglazing (grotendeels HR++, deels HR)

Akkerwinde 55 te Hapert is een complete gezinswoning waar ruimte, comfort en een fijne ligging samenkomen.

Contact

Neem contact met ons op

0497 36 91 93 info@boxmakelaardij.nl

"*" geeft vereiste velden aan

Dit veld is bedoeld voor validatiedoeleinden en moet niet worden gewijzigd.
    • *
      *
      *
    • *