Vragen of afspraak maken?

Stuur ons een bericht op Whatsapp

Bekijk onze bedrijfsvideo Volg ons (5900)
Netersel

Beemke 9

€ 495.000 k.k.

Omschrijving

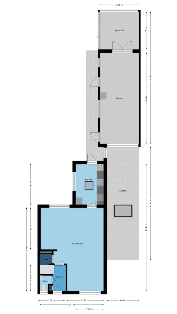
Welkom bij Beemke 9 in Netersel – een verrassend ruime, fors uitgebouwde 2-onder-1-kapwoning waar je als gezin direct alle ruimte, comfort en mogelijkheden vindt die je zoekt. Met maar liefst 133 m² gebruiksoppervlakte, betonnen verdiepingsvloeren, vier volwaardige slaapkamers, een diepe carport, ruime garage en meerdere bergingen, én een prachtig perceel van ruim 400 m² met een zonnige, meer dan 30 meter diepe achtertuin op het westen, woon je hier heerlijk vrij en compleet. De ligging pal tegenover de basisschool maakt het plaatje helemaal af voor wie een ideale gezinswoning zoekt.

Indeling:

Begane grond:

Bij binnenkomst kom je in de hal met een nette tegelvloer, een vernieuwde meterkast en een gedeeltelijk betegeld toilet met fonteintje. Vanuit hier heb je toegang tot de woonkamer en de trap naar de eerste verdieping.

De ruime L-vormige woonkamer voelt direct comfortabel aan en biedt volop leefruimte voor een gezellige zithoek en een royale eethoek. Dankzij de grote raampartijen geniet je hier van een prettige lichtinval gedurende de hele dag. De praktische trapkast zorgt voor extra bergruimte.

Aan de achterzijde bevindt zich de uitgebouwde keuken, voorzien van een tegelvloer, een lichtkoepel en een deur naar de tuin. De keuken is uitgevoerd in een nette wandopstelling en uitgerust met een gaskookplaat, afzuigkap, vaatwasser, koel-/vriescombinatie en combi-magnetron. Ook is hier de opstelling van de cv-installatie aanwezig.

Eerste verdieping:

Op de eerste verdieping kom je uit op de overloop met vloerbedekking, die toegang geeft tot drie ruime slaapkamers en de badkamer, evenals de vaste trap naar de tweede verdieping.

Alle slaapkamers zijn keurig afgewerkt met een laminaatvloer en bieden volop ruimte voor een bed, kast en eventueel een bureau. Twee kamers beschikken bovendien over een dubbele inbouwkast, wat zorgt voor extra praktische opbergruimte.

De volledig betegelde badkamer is compleet ingericht met een inloopdouche, toilet, wastafel en een aansluiting voor de wasmachine.

Tweede verdieping:

Via een vaste trap bereik je de tweede verdieping. Hier vind je een voorzolder met vloerbedekking en handige bergruimte onder de schuine kanten van het dak. Aansluitend is er een riante berging met laminaatvloer, veel opbergmogelijkheden en een Velux dakvenster voor natuurlijk licht.

De grote vierde slaapkamer is een volwaardige en sfeervolle ruimte, voorzien van een dakkapel, laminaatvloer en extra bergruimte aan beide zijden onder de dakschuinte. Ideaal als master bedroom, tienerkamer of werkruimte aan huis.

Exterieur:

Buiten ervaar je direct de ruimte en mogelijkheden van dit perceel. De voortuin is verzorgd aangelegd met bestrating en beplanting en geeft toegang tot de oprit met een ruim 10 meter diepe carport, voorzien van een lichtkoepel.

De achtertuin is een absolute eyecatcher: gelegen op het zonnige westen, meer dan 30 meter diep en met volop privacy. Je vindt hier een fijne combinatie van bestrating, gazon en diverse beplanting. Daarnaast beschikt de tuin over een gemetselde berging met kippenren, een hobbykas en een praktische achterom met schuifpoort die toegang geeft tot de oprit en carport.

De in spouwmuren gemetselde garage is royaal en functioneel, met een stalen kanteldeur met houten bekleding aan de voorzijde en openslaande deuren aan de achterzijde, waardoor je eenvoudig met bijvoorbeeld een motor of aanhanger door kunt rijden naar de tuin. De garage is verder voorzien van een smeerput, wasbak en gasaansluiting, wat het een ideale ruimte maakt voor hobbyisten of klussers.

Algemeen:
– bouwjaar 1971.
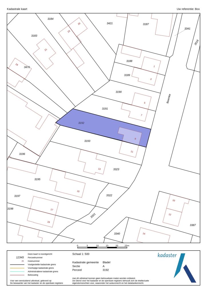
– perceeloppervlakte 413 m².
– inhoud 465 m³.
– gebruiksoppervlakte wonen 133 m².
– gebouwgebonden buitenruimte 45 m².
– externe bergruimte 55 m².
– de woning is voorzien van spouwmuur- en deels dakisolatie.
– de woning beschikt over grotendeels kunststof en deels houten kozijnen met HR isolerende beglazing.
– verwarming en warmwatervoorziening middels een Nefit c.v. combi-ketel (bouwjaar 1991).
– alle verdiepingsvloeren zijn uitgevoerd in beton.
– de dakbedekking van keuken, garage en carport is volledig vernieuwd in februari 2024.
– de woning is rondom op diverse plaatsen voorzien van rolluiken en screens.
– uitstekende ligging aan een gewilde en rustige straat pal tegenover de lokale basisschool, ideaal voor gezinnen met jonge kinderen.

Kortom: een verrassend ruime en uitstekend onderhouden gezinswoning met vier grote slaapkamers, een riante leefruimte, diepe zonnige tuin met volop privacy, multifunctionele garage en bergingen, gelegen op een royaal perceel tegenover de basisschool, waar je comfortabel, praktisch én toekomstbestendig kunt wonen.

Kenmerken

  • Woonoppervlakte: 133 m2
  • Perceeloppervlakte: 413 m2
  • Slaapkamers: 4 kamers
  • Bouwjaar: 1971

Plattegrond (11)

Video

Kenmerken

Overdracht

  • Vraagprijs: € 495.000 k.k.
  • Woonoppervlakte: 133 m2
  • Perceeloppervlakte: 413 m2
  • Inhoud: 465 m3
  • Status: Te koop
  • Energielabel: C

Bouw

  • Ligging: Aan rustige weg, In woonwijk, ,
  • Kamers: 6
  • Slaapkamers: 4 kamers
  • Soort woning: Eengezinswoning
  • Type: Twee onder een kapwoning
  • Type dak: Zadeldak

Omschrijving

Welkom bij Beemke 9 in Netersel – een verrassend ruime, fors uitgebouwde 2-onder-1-kapwoning waar je als gezin direct alle ruimte, comfort en mogelijkheden vindt die je zoekt. Met maar liefst 133 m² gebruiksoppervlakte, betonnen verdiepingsvloeren, vier volwaardige slaapkamers, een diepe carport, ruime garage en meerdere bergingen, én een prachtig perceel van ruim 400 m² met een zonnige, meer dan 30 meter diepe achtertuin op het westen, woon je hier heerlijk vrij en compleet. De ligging pal tegenover de basisschool maakt het plaatje helemaal af voor wie een ideale gezinswoning zoekt.

Indeling:

Begane grond:

Bij binnenkomst kom je in de hal met een nette tegelvloer, een vernieuwde meterkast en een gedeeltelijk betegeld toilet met fonteintje. Vanuit hier heb je toegang tot de woonkamer en de trap naar de eerste verdieping.

De ruime L-vormige woonkamer voelt direct comfortabel aan en biedt volop leefruimte voor een gezellige zithoek en een royale eethoek. Dankzij de grote raampartijen geniet je hier van een prettige lichtinval gedurende de hele dag. De praktische trapkast zorgt voor extra bergruimte.

Aan de achterzijde bevindt zich de uitgebouwde keuken, voorzien van een tegelvloer, een lichtkoepel en een deur naar de tuin. De keuken is uitgevoerd in een nette wandopstelling en uitgerust met een gaskookplaat, afzuigkap, vaatwasser, koel-/vriescombinatie en combi-magnetron. Ook is hier de opstelling van de cv-installatie aanwezig.

Eerste verdieping:

Op de eerste verdieping kom je uit op de overloop met vloerbedekking, die toegang geeft tot drie ruime slaapkamers en de badkamer, evenals de vaste trap naar de tweede verdieping.

Alle slaapkamers zijn keurig afgewerkt met een laminaatvloer en bieden volop ruimte voor een bed, kast en eventueel een bureau. Twee kamers beschikken bovendien over een dubbele inbouwkast, wat zorgt voor extra praktische opbergruimte.

De volledig betegelde badkamer is compleet ingericht met een inloopdouche, toilet, wastafel en een aansluiting voor de wasmachine.

Tweede verdieping:

Via een vaste trap bereik je de tweede verdieping. Hier vind je een voorzolder met vloerbedekking en handige bergruimte onder de schuine kanten van het dak. Aansluitend is er een riante berging met laminaatvloer, veel opbergmogelijkheden en een Velux dakvenster voor natuurlijk licht.

De grote vierde slaapkamer is een volwaardige en sfeervolle ruimte, voorzien van een dakkapel, laminaatvloer en extra bergruimte aan beide zijden onder de dakschuinte. Ideaal als master bedroom, tienerkamer of werkruimte aan huis.

Exterieur:

Buiten ervaar je direct de ruimte en mogelijkheden van dit perceel. De voortuin is verzorgd aangelegd met bestrating en beplanting en geeft toegang tot de oprit met een ruim 10 meter diepe carport, voorzien van een lichtkoepel.

De achtertuin is een absolute eyecatcher: gelegen op het zonnige westen, meer dan 30 meter diep en met volop privacy. Je vindt hier een fijne combinatie van bestrating, gazon en diverse beplanting. Daarnaast beschikt de tuin over een gemetselde berging met kippenren, een hobbykas en een praktische achterom met schuifpoort die toegang geeft tot de oprit en carport.

De in spouwmuren gemetselde garage is royaal en functioneel, met een stalen kanteldeur met houten bekleding aan de voorzijde en openslaande deuren aan de achterzijde, waardoor je eenvoudig met bijvoorbeeld een motor of aanhanger door kunt rijden naar de tuin. De garage is verder voorzien van een smeerput, wasbak en gasaansluiting, wat het een ideale ruimte maakt voor hobbyisten of klussers.

Algemeen:
– bouwjaar 1971.
– perceeloppervlakte 413 m².
– inhoud 465 m³.
– gebruiksoppervlakte wonen 133 m².
– gebouwgebonden buitenruimte 45 m².
– externe bergruimte 55 m².
– de woning is voorzien van spouwmuur- en deels dakisolatie.
– de woning beschikt over grotendeels kunststof en deels houten kozijnen met HR isolerende beglazing.
– verwarming en warmwatervoorziening middels een Nefit c.v. combi-ketel (bouwjaar 1991).
– alle verdiepingsvloeren zijn uitgevoerd in beton.
– de dakbedekking van keuken, garage en carport is volledig vernieuwd in februari 2024.
– de woning is rondom op diverse plaatsen voorzien van rolluiken en screens.
– uitstekende ligging aan een gewilde en rustige straat pal tegenover de lokale basisschool, ideaal voor gezinnen met jonge kinderen.

Kortom: een verrassend ruime en uitstekend onderhouden gezinswoning met vier grote slaapkamers, een riante leefruimte, diepe zonnige tuin met volop privacy, multifunctionele garage en bergingen, gelegen op een royaal perceel tegenover de basisschool, waar je comfortabel, praktisch én toekomstbestendig kunt wonen.

Documenten

Selecteer onderstaande documenten om ze te downloaden

Contact

Neem contact met ons op

0497 36 91 93 info@boxmakelaardij.nl

"*" geeft vereiste velden aan

Dit veld is bedoeld voor validatiedoeleinden en moet niet worden gewijzigd.
    • *
      *
      *
    • *