Dr. Cramerstraat 36
€ 475.000 k.k.Omschrijving
Wonen op een toplocatie in Bladel – Dr. Cramerstraat 36
Welkom bij deze charmante en verrassend ruime 2-onder-1-kapwoning, gelegen op één van de meest gewilde woonlocaties van Bladel. Aan een rustige straat, in een kindvriendelijke woonomgeving én op zeer korte afstand van het centrum, vind je deze keurig onderhouden woning op een fraai perceel van maar liefst 345 m².
Hoewel de woning op enkele onderdelen gemoderniseerd kan worden, zijn belangrijke zaken al aangepakt: zo is de woning voorzien van vernieuwde kunststof kozijnen, een moderne badkamer en een gemoderniseerde toiletruimte. De diepe, zonnige achtertuin op het zuiden met riante garage en berging maakt het plaatje compleet.
Begane grond – Licht, ruimte en een fijne basis
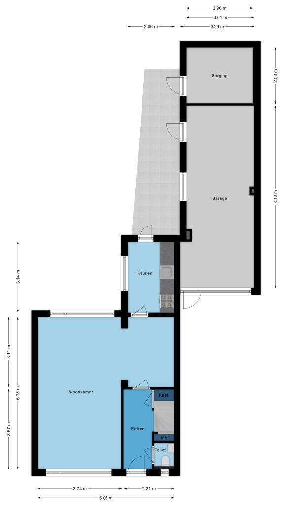
Via de hal met tegelvloer betreed je de woning. Hier vind je de volledig betegelde, gemoderniseerde toiletruimte met wandcloset en fonteintje, de meterkast, een praktische trapkast en de trapopgang naar de eerste verdieping.
De hal biedt toegang tot de gezellige L-vormige woonkamer. Deze ruimte voelt direct prettig aan dankzij de grote raampartijen, de fijne lichtinval en het mooie uitzicht over de diepe achtertuin. De woonkamer is afgewerkt met vloerbedekking en biedt volop mogelijkheden om geheel naar eigen smaak te moderniseren en in te richten.
Aansluitend bevindt zich de dichte keuken, voorzien van een tegelvloer en een deur naar de achtertuin. De keukeninrichting in wandopstelling beschikt over een gaskookplaat, afzuigkap, oven en koelkast. Een functionele ruimte met potentie voor wie droomt van een moderne leefkeuken of eigentijdse upgrade.
Eerste verdieping – Comfortabele slaapkamers en moderne badkamer
Op de eerste verdieping kom je op de overloop met vloerbedekking en een vaste trap naar de tweede verdieping.
Hier bevinden zich drie ruime slaapkamers, allen voorzien van vloerbedekking, behangwanden en stucwerkplafonds. Dankzij de prettige afmetingen zijn de kamers multifunctioneel inzetbaar, bijvoorbeeld als kinder-, werk- of logeerkamer.
De volledig betegelde, gemoderniseerde badkamer is een echte plus: strak en eigentijds ingericht met een inloopdouche, wandcloset, wastafelmeubel en designradiator. Een comfortabele ruimte waar je jarenlang van kunt genieten.
Tweede verdieping – Extra ruimte en volop mogelijkheden
Via de vaste trap bereik je de tweede verdieping. Op de voorzolder zorgen een dakraam en de praktische indeling voor een prettige, lichte ruimte. Hier vind je de opstelling van de cv-installatie, de wasmachine-aansluiting en bergruimte aan beide zijden onder de dakschuinte.
De zolderkamer biedt volop mogelijkheden voor het realiseren van een vierde slaapkamer, hobbyruimte of thuiswerkplek. Ook hier is vloerbedekking aanwezig en is er extra bergruimte onder de schuine kanten.
Exterieur – Zonnige tuin, privacy en uitstekende voorzieningen
De woning beschikt over een nette voortuin met gazon en diverse beplanting. De oprit biedt parkeergelegenheid voor twee auto’s, ideaal voor gezinnen of gasten.
De absolute eyecatcher is de ruim 20 meter diepe achtertuin, gelegen op het zonnige zuiden. Deze tuin biedt volop privacy en is ingericht met bestrating, een ruim gazon en diverse beplanting – een heerlijke plek om te ontspannen, te spelen of lange zomeravonden door te brengen.
In de tuin staat een riante garage, bereikbaar via een stalen kanteldeur vanaf de oprit en voorzien van een separate loopdeur. Aan de achterzijde van de garage is bovendien een praktische berging gerealiseerd, ideaal voor fietsen, tuinspullen of extra opslag.
Algemeen:
– bouwjaar 1974.
– perceeloppervlakte 345 m².
– inhoud 507 m³.
– gebruiksoppervlakte wonen 105 m².
– overige inpandige ruimte 32 m².
– gebouwgebonden buitenruimte 14 m².
– de woning is voorzien van dak- en spouwmuurisolatie.
– nagenoeg volledig voorzien van moderne kunststof kozijnen met isolerende HR beglazing.
– verwarming en warmwatervoorziening middels een Intergas c.v. combi-ketel (bouwjaar 2018).
– alle verdiepingsvloeren zijn uitgevoerd in beton.
– de houten borstweringen zijn in het verleden vervangen door donkere bakstenen waardoor er een modern en onderhoudsvriendelijk geheel is gecreëerd.
-de 2 slaapkamers aan de achterzijde zijn voorzien van rolluiken.
– de begane grond is aan de achterzijde voorzien van screens.
– toplocatie in een zeer gewilde, kindvriendelijke woonomgeving met diverse speelveldjes in de direct omgeving. Tevens loop je vanaf deze locatie direct het gezellige Bladelse centrum in!
Kortom: Dr. Cramerstraat 36 is een uitstekende gezinswoning met potentie, gelegen op een toplocatie in Bladel. Een diepe zonnige tuin, moderne sanitaire voorzieningen, kunststof kozijnen en volop uitbreidingsmogelijkheden maken dit een woning die je gezien móét hebben.
Een heerlijke plek om je woonwensen waar te maken en jarenlang met plezier te wonen!
Kenmerken
- Woonoppervlakte: 105 m2
- Perceeloppervlakte: 345 m2
- Slaapkamers: 4 kamers
- Bouwjaar: 1974
Kenmerken
Overdracht
- Vraagprijs: € 475.000 k.k.
- Woonoppervlakte: 105 m2
- Perceeloppervlakte: 345 m2
- Inhoud: 507 m3
- Status: Te koop
- Energielabel: C
Bouw
- Ligging: Aan rustige weg, In centrum, In woonwijk,
- Kamers: 5
- Slaapkamers: 4 kamers
- Soort woning: Eengezinswoning
- Type: Twee onder een kapwoning
- Type dak: Zadeldak
Omschrijving
Wonen op een toplocatie in Bladel – Dr. Cramerstraat 36
Welkom bij deze charmante en verrassend ruime 2-onder-1-kapwoning, gelegen op één van de meest gewilde woonlocaties van Bladel. Aan een rustige straat, in een kindvriendelijke woonomgeving én op zeer korte afstand van het centrum, vind je deze keurig onderhouden woning op een fraai perceel van maar liefst 345 m².
Hoewel de woning op enkele onderdelen gemoderniseerd kan worden, zijn belangrijke zaken al aangepakt: zo is de woning voorzien van vernieuwde kunststof kozijnen, een moderne badkamer en een gemoderniseerde toiletruimte. De diepe, zonnige achtertuin op het zuiden met riante garage en berging maakt het plaatje compleet.
Begane grond – Licht, ruimte en een fijne basis
Via de hal met tegelvloer betreed je de woning. Hier vind je de volledig betegelde, gemoderniseerde toiletruimte met wandcloset en fonteintje, de meterkast, een praktische trapkast en de trapopgang naar de eerste verdieping.
De hal biedt toegang tot de gezellige L-vormige woonkamer. Deze ruimte voelt direct prettig aan dankzij de grote raampartijen, de fijne lichtinval en het mooie uitzicht over de diepe achtertuin. De woonkamer is afgewerkt met vloerbedekking en biedt volop mogelijkheden om geheel naar eigen smaak te moderniseren en in te richten.
Aansluitend bevindt zich de dichte keuken, voorzien van een tegelvloer en een deur naar de achtertuin. De keukeninrichting in wandopstelling beschikt over een gaskookplaat, afzuigkap, oven en koelkast. Een functionele ruimte met potentie voor wie droomt van een moderne leefkeuken of eigentijdse upgrade.
Eerste verdieping – Comfortabele slaapkamers en moderne badkamer
Op de eerste verdieping kom je op de overloop met vloerbedekking en een vaste trap naar de tweede verdieping.
Hier bevinden zich drie ruime slaapkamers, allen voorzien van vloerbedekking, behangwanden en stucwerkplafonds. Dankzij de prettige afmetingen zijn de kamers multifunctioneel inzetbaar, bijvoorbeeld als kinder-, werk- of logeerkamer.
De volledig betegelde, gemoderniseerde badkamer is een echte plus: strak en eigentijds ingericht met een inloopdouche, wandcloset, wastafelmeubel en designradiator. Een comfortabele ruimte waar je jarenlang van kunt genieten.
Tweede verdieping – Extra ruimte en volop mogelijkheden
Via de vaste trap bereik je de tweede verdieping. Op de voorzolder zorgen een dakraam en de praktische indeling voor een prettige, lichte ruimte. Hier vind je de opstelling van de cv-installatie, de wasmachine-aansluiting en bergruimte aan beide zijden onder de dakschuinte.
De zolderkamer biedt volop mogelijkheden voor het realiseren van een vierde slaapkamer, hobbyruimte of thuiswerkplek. Ook hier is vloerbedekking aanwezig en is er extra bergruimte onder de schuine kanten.
Exterieur – Zonnige tuin, privacy en uitstekende voorzieningen
De woning beschikt over een nette voortuin met gazon en diverse beplanting. De oprit biedt parkeergelegenheid voor twee auto’s, ideaal voor gezinnen of gasten.
De absolute eyecatcher is de ruim 20 meter diepe achtertuin, gelegen op het zonnige zuiden. Deze tuin biedt volop privacy en is ingericht met bestrating, een ruim gazon en diverse beplanting – een heerlijke plek om te ontspannen, te spelen of lange zomeravonden door te brengen.
In de tuin staat een riante garage, bereikbaar via een stalen kanteldeur vanaf de oprit en voorzien van een separate loopdeur. Aan de achterzijde van de garage is bovendien een praktische berging gerealiseerd, ideaal voor fietsen, tuinspullen of extra opslag.
Algemeen:
– bouwjaar 1974.
– perceeloppervlakte 345 m².
– inhoud 507 m³.
– gebruiksoppervlakte wonen 105 m².
– overige inpandige ruimte 32 m².
– gebouwgebonden buitenruimte 14 m².
– de woning is voorzien van dak- en spouwmuurisolatie.
– nagenoeg volledig voorzien van moderne kunststof kozijnen met isolerende HR beglazing.
– verwarming en warmwatervoorziening middels een Intergas c.v. combi-ketel (bouwjaar 2018).
– alle verdiepingsvloeren zijn uitgevoerd in beton.
– de houten borstweringen zijn in het verleden vervangen door donkere bakstenen waardoor er een modern en onderhoudsvriendelijk geheel is gecreëerd.
-de 2 slaapkamers aan de achterzijde zijn voorzien van rolluiken.
– de begane grond is aan de achterzijde voorzien van screens.
– toplocatie in een zeer gewilde, kindvriendelijke woonomgeving met diverse speelveldjes in de direct omgeving. Tevens loop je vanaf deze locatie direct het gezellige Bladelse centrum in!
Kortom: Dr. Cramerstraat 36 is een uitstekende gezinswoning met potentie, gelegen op een toplocatie in Bladel. Een diepe zonnige tuin, moderne sanitaire voorzieningen, kunststof kozijnen en volop uitbreidingsmogelijkheden maken dit een woning die je gezien móét hebben.
Een heerlijke plek om je woonwensen waar te maken en jarenlang met plezier te wonen!