Vragen of afspraak maken?

Stuur ons een bericht op Whatsapp

Bekijk onze bedrijfsvideo Volg ons (5900)
Hapert

Klaproos 40

€ 459.500 k.k.

Omschrijving

Wonen op een toplocatie in Hapert

Welkom aan de Klaproos 40 in Hapert: een recent gerenoveerde en gemoderniseerde 2-onder-1-kapwoning waar ruimte, comfort en sfeer perfect samenkomen. Je woont hier aan een verkeersarm woonerf, in een kindvriendelijke woonomgeving, op steenworp afstand van het prachtige natuurgebied “De Nieuwe Wildernis”. Dankzij de grote uitbouw aan de achterzijde geniet je binnen van een verrassend riante leefruimte met aparte speel-/werkkamer, op de verdiepingen 4 slaapkamers, terwijl de zonnige achtertuin op het zuidwesten het buitenleven compleet maakt.

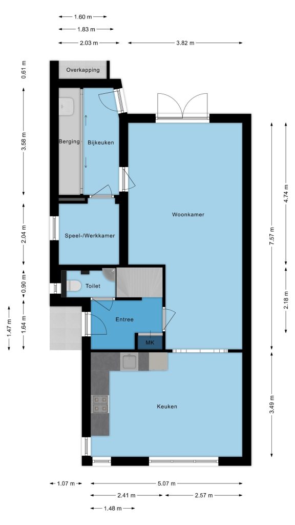
Begane grond – royaal, licht en luxe

Via de hal, voorzien van een volledig vernieuwde meterkast (9 groepen en 2 aardlekschakelaars), stap je deze instapklare woning binnen. De begane grond is volledig afgewerkt met een stijlvolle houtlook tegelvloer, wat zorgt voor een rustige en moderne uitstraling. De ruime toiletruimte is volledig betegeld en uitgerust met een wandcloset en fonteintje. Vanuit de hal heb je toegang tot de woonkamer en de trapopgang naar de eerste verdieping.

Aan de voorzijde van de woning bevindt zich de open leefkeuken met volop ruimte voor een grote eettafel: dé plek voor lange diners en gezellige avonden. De nieuwe luxe keuken (2026) in hoekopstelling is compleet uitgerust met een gaskookplaat, afzuigkap, koelkast, combi-oven, vaatwasser en een fraai composiet aanrechtblad.

De fors uitgebouwde woonkamer is een echte blikvanger. Hier geniet je van veel licht, spachtelputzwanden, een strak stucwerkplafond met sierlijst en openslaande tuindeuren die direct toegang geven tot de zonnige achtertuin.

Aansluitend vind je de volledig betegelde bijkeuken, voorzien van een deur naar de tuin en een praktische 4-deurs kastenwand met wasmachine-aansluiting en uitstortgootsteen. Daarnaast is er een aparte werk-/speelkamer, ideaal voor thuiswerken of spelende kinderen, met spachtelputzwanden en een MDF-plafond met inbouwspots.

Eerste verdieping – comfortabel en modern

Op de eerste verdieping kom je op de overloop met laminaatvloer, die toegang biedt tot drie ruime slaapkamers en de badkamer. Alle slaapkamers zijn netjes afgewerkt met laminaatvloeren, stucwerkwanden en stucwerkplafonds.

De moderne badkamer is volledig betegeld en van alle gemakken voorzien: een douchecabine, wastafelmeubel, wandcloset en een stijlvolle designradiator. Dankzij de betonnen vloer ervaar je hier extra comfort en degelijkheid.

Tweede verdieping – verrassend veel ruimte

Via een vaste trap bereik je de tweede verdieping. Op de voorzolder ligt een laminaatvloer en zorgt een dakkapel met elektrisch bedienbaar rolluik voor extra licht en ruimte. Hier vind je tevens de opstelling van de c.v.-installatie, een handige vliering en de mogelijkheid om een extra wasmachine-aansluiting te realiseren.

De vierde slaapkamer is een volwaardige en sfeervolle ruimte, eveneens voorzien van een dakkapel met elektrisch rolluik, laminaatvloer, een dubbele inbouwkast en extra bergruimte onder de dakschuinte.

Exterieur – zonnig en onderhoudsvriendelijk

De voortuin is keurig aangelegd met diverse beplanting en leibomen.

De achtertuin, gelegen op het zuidwesten, is onderhoudsvriendelijk ingericht met sierbestrating, groen, een zonneluifel, een houten tuinberging en een praktische achterom met poort. Hier geniet je tot in de avond van de zon.

Algemeen:
– bouwjaar 1987.
– perceeloppervlakte 155 m².
– inhoud 458 m³.
– gebruiksoppervlakte 127 m².
– gebouwgebonden buitenruimte 3 m².
– externe bergruimte 8 m².
– de woning is voorzien van dak-, spouwmuur- en vloerisolatie.
– de woning is voorzien van houten en kunststof kozijnen, nagenoeg volledig met isolerende beglazing.
– verwarming en warmwatervoorziening middels een Remeha c.v. combi-ketel (bouwjaar 2001).
– op de begane grond is vloerverwarming aanwezig.
– de woning is voorzien van betonnen verdiepingsvloeren.
– het betreft hier een instapklare woning welke in 2025/2026 nagenoeg volledig is gerenoveerd en gemoderniseerd.
– uitstekende ligging in een kindvriendelijke woonomgeving met ruim voldoende openbare parkeergelegenheid op loopafstand van natuurgebied “De Nieuwe Wildernis” waar je heerlijk kunt wandelen en relaxen.

Kortom: Klaproos 40 is een instapklare, verrassend ruime en moderne gezinswoning op een rustige en groene toplocatie – een huis waar je zó in kunt trekken en jarenlang met plezier zult wonen.

Kenmerken

  • Woonoppervlakte: 127 m2
  • Perceeloppervlakte: 155 m2
  • Slaapkamers: 4 kamers
  • Bouwjaar: 1987

Plattegrond (9)

Video

Kenmerken

Overdracht

  • Vraagprijs: € 459.500 k.k.
  • Woonoppervlakte: 127 m2
  • Perceeloppervlakte: 155 m2
  • Inhoud: 458 m3
  • Status: Te koop
  • Energielabel: C

Bouw

  • Ligging: Aan rustige weg, In woonwijk, ,
  • Kamers: 7
  • Slaapkamers: 4 kamers
  • Soort woning: Eengezinswoning
  • Type: Twee onder een kapwoning
  • Type dak: Zadeldak

Omschrijving

Wonen op een toplocatie in Hapert

Welkom aan de Klaproos 40 in Hapert: een recent gerenoveerde en gemoderniseerde 2-onder-1-kapwoning waar ruimte, comfort en sfeer perfect samenkomen. Je woont hier aan een verkeersarm woonerf, in een kindvriendelijke woonomgeving, op steenworp afstand van het prachtige natuurgebied “De Nieuwe Wildernis”. Dankzij de grote uitbouw aan de achterzijde geniet je binnen van een verrassend riante leefruimte met aparte speel-/werkkamer, op de verdiepingen 4 slaapkamers, terwijl de zonnige achtertuin op het zuidwesten het buitenleven compleet maakt.

Begane grond – royaal, licht en luxe

Via de hal, voorzien van een volledig vernieuwde meterkast (9 groepen en 2 aardlekschakelaars), stap je deze instapklare woning binnen. De begane grond is volledig afgewerkt met een stijlvolle houtlook tegelvloer, wat zorgt voor een rustige en moderne uitstraling. De ruime toiletruimte is volledig betegeld en uitgerust met een wandcloset en fonteintje. Vanuit de hal heb je toegang tot de woonkamer en de trapopgang naar de eerste verdieping.

Aan de voorzijde van de woning bevindt zich de open leefkeuken met volop ruimte voor een grote eettafel: dé plek voor lange diners en gezellige avonden. De nieuwe luxe keuken (2026) in hoekopstelling is compleet uitgerust met een gaskookplaat, afzuigkap, koelkast, combi-oven, vaatwasser en een fraai composiet aanrechtblad.

De fors uitgebouwde woonkamer is een echte blikvanger. Hier geniet je van veel licht, spachtelputzwanden, een strak stucwerkplafond met sierlijst en openslaande tuindeuren die direct toegang geven tot de zonnige achtertuin.

Aansluitend vind je de volledig betegelde bijkeuken, voorzien van een deur naar de tuin en een praktische 4-deurs kastenwand met wasmachine-aansluiting en uitstortgootsteen. Daarnaast is er een aparte werk-/speelkamer, ideaal voor thuiswerken of spelende kinderen, met spachtelputzwanden en een MDF-plafond met inbouwspots.

Eerste verdieping – comfortabel en modern

Op de eerste verdieping kom je op de overloop met laminaatvloer, die toegang biedt tot drie ruime slaapkamers en de badkamer. Alle slaapkamers zijn netjes afgewerkt met laminaatvloeren, stucwerkwanden en stucwerkplafonds.

De moderne badkamer is volledig betegeld en van alle gemakken voorzien: een douchecabine, wastafelmeubel, wandcloset en een stijlvolle designradiator. Dankzij de betonnen vloer ervaar je hier extra comfort en degelijkheid.

Tweede verdieping – verrassend veel ruimte

Via een vaste trap bereik je de tweede verdieping. Op de voorzolder ligt een laminaatvloer en zorgt een dakkapel met elektrisch bedienbaar rolluik voor extra licht en ruimte. Hier vind je tevens de opstelling van de c.v.-installatie, een handige vliering en de mogelijkheid om een extra wasmachine-aansluiting te realiseren.

De vierde slaapkamer is een volwaardige en sfeervolle ruimte, eveneens voorzien van een dakkapel met elektrisch rolluik, laminaatvloer, een dubbele inbouwkast en extra bergruimte onder de dakschuinte.

Exterieur – zonnig en onderhoudsvriendelijk

De voortuin is keurig aangelegd met diverse beplanting en leibomen.

De achtertuin, gelegen op het zuidwesten, is onderhoudsvriendelijk ingericht met sierbestrating, groen, een zonneluifel, een houten tuinberging en een praktische achterom met poort. Hier geniet je tot in de avond van de zon.

Algemeen:
– bouwjaar 1987.
– perceeloppervlakte 155 m².
– inhoud 458 m³.
– gebruiksoppervlakte 127 m².
– gebouwgebonden buitenruimte 3 m².
– externe bergruimte 8 m².
– de woning is voorzien van dak-, spouwmuur- en vloerisolatie.
– de woning is voorzien van houten en kunststof kozijnen, nagenoeg volledig met isolerende beglazing.
– verwarming en warmwatervoorziening middels een Remeha c.v. combi-ketel (bouwjaar 2001).
– op de begane grond is vloerverwarming aanwezig.
– de woning is voorzien van betonnen verdiepingsvloeren.
– het betreft hier een instapklare woning welke in 2025/2026 nagenoeg volledig is gerenoveerd en gemoderniseerd.
– uitstekende ligging in een kindvriendelijke woonomgeving met ruim voldoende openbare parkeergelegenheid op loopafstand van natuurgebied “De Nieuwe Wildernis” waar je heerlijk kunt wandelen en relaxen.

Kortom: Klaproos 40 is een instapklare, verrassend ruime en moderne gezinswoning op een rustige en groene toplocatie – een huis waar je zó in kunt trekken en jarenlang met plezier zult wonen.

Documenten

Selecteer onderstaande documenten om ze te downloaden

Contact

Neem contact met ons op

0497 36 91 93 info@boxmakelaardij.nl

"*" geeft vereiste velden aan

Dit veld is bedoeld voor validatiedoeleinden en moet niet worden gewijzigd.
    • *
      *
      *
    • *