Vragen of afspraak maken?

Stuur ons een bericht op Whatsapp

Bekijk onze bedrijfsvideo Volg ons (5900)
Oirschot

Sweerts de Landasstraat 20

Omschrijving

In een verkeersarme, kindvriendelijke woonomgeving op een fraai hoekperceel van bijna 300 m² ligt deze keurig onderhouden 2-onder-1-kap woning. De woning is geheel op neutrale wijze afgewerkt en is onder andere voorzien van een zeer lichte doorzon-woonkamer, drie slaapkamers, een handige inpandige garage en een brede achtertuin met terrasoverkapping. De woning bovendien ruim voldoende parkeergelegenheid voor meerdere auto’s op eigen terrein.

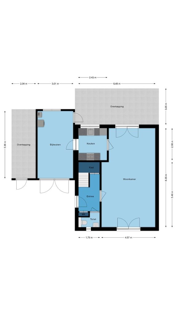
Indeling:

Begane grond:

Ruime entreehal met een travertin tegelvloer, gedeeltelijk betegelde toiletruimte met wandcloset, wastafel en ingebouwde muziekinstallatie, praktische trapkast en de meterkast (6 groepen, 1 kookgroep en 2 aardlekschakelaars). Daarnaast is er toegang tot de woonkamer en middels de trapopgang bereik je de 1e verdieping.

Mooie brede doorzon-woonkamer voorzien van een travertin tegelvloer, stucwerkwanden, spuitwerkplafond en openslaande tuindeuren aan zowel voor- als achterzijde. De grote raampartijen zorgen voor ruim voldoende lichtinval in deze woonkamer.

Dichte keuken voorzien van een eenvoudige 2-delige keukeninrichting in wandopstelling met een gaskookplaat en afzuigkap. De keuken is reeds voorzien van een aansluitmogelijkheid voor een inductiekookplaat.

Royale inpandige berging/bijkeuken met tapijttegels, wasmachine-aansluiting en opstelling van de c.v.-installatie. Middels openslaande deuren is er toegang tot de oprit en daarnaast is er ook rechtstreeks toegang tot de achtertuin.

1e verdieping:

Overloop met vloerbedekking en toegang tot drie slaapkamers en de badkamer.

Alle slaapkamers zijn voorzien van vloerbedekking, stucwerkwanden, gipsplafonds en een dakkapel voorzien van een rolluik. Het rolluik op de kinderslaapkamers aan de achterzijde is elektrisch bedienbaar en het rolluik op de ouderslaapkamer handmatig.

Volledig in neutrale kleurstelling betegelde badkamer voorzien van een ligbad-/douchecombinatie, toilet en een wastafel. Ook de badkamer is voorzien van een handmatig bedienbaar rolluik.

2e verdieping:

Middels een vlizotrap bereikbare bergzolder over de volle breedte van de woning.

Exterieur:

Riante onderhoudsvriendelijke voortuin voorzien van een oprit met sierbestrating en een beukenhaag. De voortuin/oprit biedt ruim voldoende parkeergelegenheid voor meerdere auto’s.

Op het zonnige zuid-oosten gesitueerde achtertuin voorzien van een aluminium terrasoverkapping met inbouwspots, gazon, sierbestrating en een overkapping met poort naar de oprit naast de woning. Aan de zijkant is een dubbele poort aanwezig waardoor eventueel ook een caravan of aanhangwagen op eigen terrein kunnen worden geparkeerd.

Algemeen:
– bouwjaar 2002.
– perceeloppervlakte 289 m².
– inhoud 414 m³.
– gebruiksoppervlakte wonen 115 m².
– overige inpandige ruimte 1 m².
– gebouwgebonden buitenruimte 34 m².
– de woning is voorzien van dak-, spouwmuur- en vloerisolatie.
– de woning is voorzien van houten en kunststof kozijnen met HR++ isolerende beglazing.
– verwarming en warmwatervoorziening middels een Nefit HR c.v. combi-ketel (bouwjaar 2022).
– uitstekende locatie in een gewilde, kindvriendelijke woonomgeving aan de rand van het dorp en korte afstand van het prachtige buitengebied rondom Oirschot.

Kenmerken

  • Woonoppervlakte: 115 m2
  • Perceeloppervlakte: 289 m2
  • Slaapkamers: 3 kamers
  • Bouwjaar: 2002

Kenmerken

Overdracht

  • Woonoppervlakte: 115 m2
  • Perceeloppervlakte: 289 m2
  • Inhoud: 414 m3
  • Status: Verkocht
  • Energielabel: B

Bouw

  • Ligging: Aan rustige weg, In woonwijk, ,
  • Kamers: 4
  • Slaapkamers: 3 kamers
  • Soort woning: Eengezinswoning
  • Type: Twee onder een kapwoning
  • Type dak: Zadeldak

Omschrijving

In een verkeersarme, kindvriendelijke woonomgeving op een fraai hoekperceel van bijna 300 m² ligt deze keurig onderhouden 2-onder-1-kap woning. De woning is geheel op neutrale wijze afgewerkt en is onder andere voorzien van een zeer lichte doorzon-woonkamer, drie slaapkamers, een handige inpandige garage en een brede achtertuin met terrasoverkapping. De woning bovendien ruim voldoende parkeergelegenheid voor meerdere auto’s op eigen terrein.

Indeling:

Begane grond:

Ruime entreehal met een travertin tegelvloer, gedeeltelijk betegelde toiletruimte met wandcloset, wastafel en ingebouwde muziekinstallatie, praktische trapkast en de meterkast (6 groepen, 1 kookgroep en 2 aardlekschakelaars). Daarnaast is er toegang tot de woonkamer en middels de trapopgang bereik je de 1e verdieping.

Mooie brede doorzon-woonkamer voorzien van een travertin tegelvloer, stucwerkwanden, spuitwerkplafond en openslaande tuindeuren aan zowel voor- als achterzijde. De grote raampartijen zorgen voor ruim voldoende lichtinval in deze woonkamer.

Dichte keuken voorzien van een eenvoudige 2-delige keukeninrichting in wandopstelling met een gaskookplaat en afzuigkap. De keuken is reeds voorzien van een aansluitmogelijkheid voor een inductiekookplaat.

Royale inpandige berging/bijkeuken met tapijttegels, wasmachine-aansluiting en opstelling van de c.v.-installatie. Middels openslaande deuren is er toegang tot de oprit en daarnaast is er ook rechtstreeks toegang tot de achtertuin.

1e verdieping:

Overloop met vloerbedekking en toegang tot drie slaapkamers en de badkamer.

Alle slaapkamers zijn voorzien van vloerbedekking, stucwerkwanden, gipsplafonds en een dakkapel voorzien van een rolluik. Het rolluik op de kinderslaapkamers aan de achterzijde is elektrisch bedienbaar en het rolluik op de ouderslaapkamer handmatig.

Volledig in neutrale kleurstelling betegelde badkamer voorzien van een ligbad-/douchecombinatie, toilet en een wastafel. Ook de badkamer is voorzien van een handmatig bedienbaar rolluik.

2e verdieping:

Middels een vlizotrap bereikbare bergzolder over de volle breedte van de woning.

Exterieur:

Riante onderhoudsvriendelijke voortuin voorzien van een oprit met sierbestrating en een beukenhaag. De voortuin/oprit biedt ruim voldoende parkeergelegenheid voor meerdere auto’s.

Op het zonnige zuid-oosten gesitueerde achtertuin voorzien van een aluminium terrasoverkapping met inbouwspots, gazon, sierbestrating en een overkapping met poort naar de oprit naast de woning. Aan de zijkant is een dubbele poort aanwezig waardoor eventueel ook een caravan of aanhangwagen op eigen terrein kunnen worden geparkeerd.

Algemeen:
– bouwjaar 2002.
– perceeloppervlakte 289 m².
– inhoud 414 m³.
– gebruiksoppervlakte wonen 115 m².
– overige inpandige ruimte 1 m².
– gebouwgebonden buitenruimte 34 m².
– de woning is voorzien van dak-, spouwmuur- en vloerisolatie.
– de woning is voorzien van houten en kunststof kozijnen met HR++ isolerende beglazing.
– verwarming en warmwatervoorziening middels een Nefit HR c.v. combi-ketel (bouwjaar 2022).
– uitstekende locatie in een gewilde, kindvriendelijke woonomgeving aan de rand van het dorp en korte afstand van het prachtige buitengebied rondom Oirschot.

Contact

Neem contact met ons op

0497 36 91 93 info@boxmakelaardij.nl

"*" geeft vereiste velden aan

Dit veld is bedoeld voor validatiedoeleinden en moet niet worden gewijzigd.
*
*
*
*