Vragen of afspraak maken?

Stuur ons een bericht op Whatsapp

Bekijk onze bedrijfsvideo Volg ons (5900)
Bergeijk

Breerijt 40

Omschrijving

Breerijt 40

Verrassend ruime, degelijk gebouwde vrijstaande woning, in verkeersarme straat nabij basisschool, sportvelden en speelweide gelegen. De woning van 158 vierkante meter woonoppervlakte beschikt over een ruime woonkamer met houtkachel, een woonkeuken, praktische bijkeuken en vier ruime slaapkamers. De woning is van het volledige isolatiepakket voorzien, 10 zonnepanelen en isolerende beglazing waardoor deze over een energielabel B beschikt. De riante garage (8,15 x 4,00) met bergzolder met aansluitend de eigen oprit maakt het plaatje compleet.

Begane grond

Entree
Middels eigen oprit bereik je de ruime entreehal van de woning. Vanuit hier heb je toegang tot de meterkast (8 groepen & glasvezel), de eerste verdieping en de woonkamer. Daarnaast is er volop ruimte voor een garderobe te plaatsen.

Woonkamer
De ruime woonkamer is afgewerkt met een nette tegelvloer met vloerverwarming, stucwerk wanden en stucwerk plafonds. Dankzij de vele ramen en de erker valt er volop daglicht binnen, waardoor de ruimte licht en uitnodigend aanvoelt. Daarnaast beschikt de woonkamer over een gezellige houtkachel. Er is voldoende ruimte voor een grote eettafel waar gemakkelijk 6 personen kunnen plaatsnemen, ideaal om familie of vrienden te ontvangen.

Keuken
De ruime, dichte keuken is praktisch ingedeeld en uitgerust met een vierpits gasfornuis, koelkast, vaatwasser, oven en afzuigkap. De ruimte is voorzien van vloerverwarming. Aansluitend aan de keuken bevindt zich een royale kelderkast met volop bergruimte voor voorraad, keukengerei of schoonmaakspullen. Dankzij de fijne afmetingen is er bovendien voldoende plek voor een eettafel.

Bijkeuken
De bijkeuken die verbonden is aan de keuken is voorzien van de witgoedaansluitingen, een gootsteen en een loopdeur naar de tuin. Aan de bijkeuken grenst een apart toilet voorzien van closet en fonteintje.

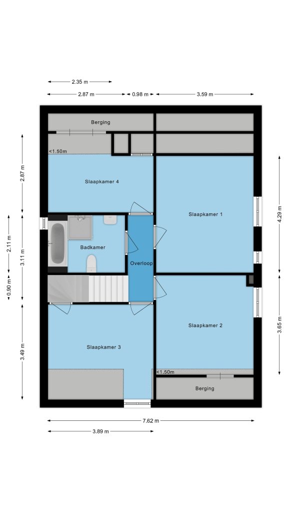
Eerste verdieping
Via de vaste trap in de entree kom je op de eerste verdieping. Vanaf de overloop heb je toegang tot maar liefst vier ruime slaapkamers en de badkamer. De kamers zijn allemaal van een prettig formaat en bieden volop mogelijkheden voor het inrichten van bijvoorbeeld een kinderkamer, werkkamer of hobbyruimte. Twee slaapkamers beschikken bovendien over extra opbergruimte achter de schuine kant. Dankzij de vele raampartijen genieten de slaapkamers van veel natuurlijk licht, wat zorgt voor een prettige en open sfeer. De ruimtes zijn afgewerkt met stucwerk op de wanden en schroten plafonds.

Badkamer
De ruime badkamer is praktisch ingedeeld en voorzien van alle voorzieningen. Zo beschikt de ruimte over een toilet, douche, ligbad, wastafel en radiator. De badkamer is volledig betegeld en uitgevoerd in een neutrale kleurstelling.

Tweede verdieping
Middels een vaste trap bereik je de tweede verdieping. Deze royale zolderverdieping biedt volop mogelijkheden en kan geheel naar eigen wens worden ingedeeld. Zo is er voldoende ruimte om een vijfde slaapkamer, een thuiswerkplek of een hobbyruimte te realiseren. Op de zolder bevindt zich tevens de C.V.-installatie (Vaillant, bouwjaar 2020).

Exterieur
De woning beschikt over een ruime tuin met veel groen. Buiten kun je heerlijk van het weer genieten onder de mooie overkapping met spots en twee lichtkoepels. Aan de achterzijde van het perceel is een tweede overdekt zitje aanwezig en een grondwaterpomp. Tevens is er middels de eigen achterom toegang naar de oprit en de garage. De in spouw gemetselde garage is voorzien van een geïsoleerd dak, elektra, gootsteen, omvormer zonnepanelen, dubbele deuren naar de oprit en vlizo trap naar een praktische bergzolder.

Bijzonderheden
– Vrijstaande woning, in rustige, kindvriendelijke woonwijk gelegen
– Definitief energielabel B
– Vloerverwarming in de woonkamer en keuken
– Woonkamer voorzien van sfeervolle houtkachel
– De woning is volledig geïsoleerd en voorzien van houten kozijnen met isolerende beglazing
– 10 zonnepanelen (2018)
– Vrijstaande garage met bergzolder
– Grote zolder waar ruimte is voor een potentiële slaapkamer
– Bijkeuken met witgoedaansluitingen
– Ruime oprit waar ruimte is voor 2 auto’s
– Ruime, verdiepte kelderkast verbonden aan de keuken

Kenmerken

  • Woonoppervlakte: 158 m2
  • Perceeloppervlakte: 491 m2
  • Slaapkamers: 4 kamers
  • Bouwjaar: 1989

Plattegrond (6)

Kenmerken

Overdracht

  • Woonoppervlakte: 158 m2
  • Perceeloppervlakte: 491 m2
  • Inhoud: 585 m3
  • Status: Verkocht
  • Energielabel: B

Bouw

  • Ligging: Aan rustige weg, In woonwijk, ,
  • Kamers: 7
  • Slaapkamers: 4 kamers
  • Soort woning: Eengezinswoning
  • Type: Vrijstaande woning
  • Type dak: Zadeldak

Omschrijving

Breerijt 40

Verrassend ruime, degelijk gebouwde vrijstaande woning, in verkeersarme straat nabij basisschool, sportvelden en speelweide gelegen. De woning van 158 vierkante meter woonoppervlakte beschikt over een ruime woonkamer met houtkachel, een woonkeuken, praktische bijkeuken en vier ruime slaapkamers. De woning is van het volledige isolatiepakket voorzien, 10 zonnepanelen en isolerende beglazing waardoor deze over een energielabel B beschikt. De riante garage (8,15 x 4,00) met bergzolder met aansluitend de eigen oprit maakt het plaatje compleet.

Begane grond

Entree
Middels eigen oprit bereik je de ruime entreehal van de woning. Vanuit hier heb je toegang tot de meterkast (8 groepen & glasvezel), de eerste verdieping en de woonkamer. Daarnaast is er volop ruimte voor een garderobe te plaatsen.

Woonkamer
De ruime woonkamer is afgewerkt met een nette tegelvloer met vloerverwarming, stucwerk wanden en stucwerk plafonds. Dankzij de vele ramen en de erker valt er volop daglicht binnen, waardoor de ruimte licht en uitnodigend aanvoelt. Daarnaast beschikt de woonkamer over een gezellige houtkachel. Er is voldoende ruimte voor een grote eettafel waar gemakkelijk 6 personen kunnen plaatsnemen, ideaal om familie of vrienden te ontvangen.

Keuken
De ruime, dichte keuken is praktisch ingedeeld en uitgerust met een vierpits gasfornuis, koelkast, vaatwasser, oven en afzuigkap. De ruimte is voorzien van vloerverwarming. Aansluitend aan de keuken bevindt zich een royale kelderkast met volop bergruimte voor voorraad, keukengerei of schoonmaakspullen. Dankzij de fijne afmetingen is er bovendien voldoende plek voor een eettafel.

Bijkeuken
De bijkeuken die verbonden is aan de keuken is voorzien van de witgoedaansluitingen, een gootsteen en een loopdeur naar de tuin. Aan de bijkeuken grenst een apart toilet voorzien van closet en fonteintje.

Eerste verdieping
Via de vaste trap in de entree kom je op de eerste verdieping. Vanaf de overloop heb je toegang tot maar liefst vier ruime slaapkamers en de badkamer. De kamers zijn allemaal van een prettig formaat en bieden volop mogelijkheden voor het inrichten van bijvoorbeeld een kinderkamer, werkkamer of hobbyruimte. Twee slaapkamers beschikken bovendien over extra opbergruimte achter de schuine kant. Dankzij de vele raampartijen genieten de slaapkamers van veel natuurlijk licht, wat zorgt voor een prettige en open sfeer. De ruimtes zijn afgewerkt met stucwerk op de wanden en schroten plafonds.

Badkamer
De ruime badkamer is praktisch ingedeeld en voorzien van alle voorzieningen. Zo beschikt de ruimte over een toilet, douche, ligbad, wastafel en radiator. De badkamer is volledig betegeld en uitgevoerd in een neutrale kleurstelling.

Tweede verdieping
Middels een vaste trap bereik je de tweede verdieping. Deze royale zolderverdieping biedt volop mogelijkheden en kan geheel naar eigen wens worden ingedeeld. Zo is er voldoende ruimte om een vijfde slaapkamer, een thuiswerkplek of een hobbyruimte te realiseren. Op de zolder bevindt zich tevens de C.V.-installatie (Vaillant, bouwjaar 2020).

Exterieur
De woning beschikt over een ruime tuin met veel groen. Buiten kun je heerlijk van het weer genieten onder de mooie overkapping met spots en twee lichtkoepels. Aan de achterzijde van het perceel is een tweede overdekt zitje aanwezig en een grondwaterpomp. Tevens is er middels de eigen achterom toegang naar de oprit en de garage. De in spouw gemetselde garage is voorzien van een geïsoleerd dak, elektra, gootsteen, omvormer zonnepanelen, dubbele deuren naar de oprit en vlizo trap naar een praktische bergzolder.

Bijzonderheden
– Vrijstaande woning, in rustige, kindvriendelijke woonwijk gelegen
– Definitief energielabel B
– Vloerverwarming in de woonkamer en keuken
– Woonkamer voorzien van sfeervolle houtkachel
– De woning is volledig geïsoleerd en voorzien van houten kozijnen met isolerende beglazing
– 10 zonnepanelen (2018)
– Vrijstaande garage met bergzolder
– Grote zolder waar ruimte is voor een potentiële slaapkamer
– Bijkeuken met witgoedaansluitingen
– Ruime oprit waar ruimte is voor 2 auto’s
– Ruime, verdiepte kelderkast verbonden aan de keuken

Documenten

Selecteer onderstaande documenten om ze te downloaden

Contact

Neem contact met ons op

0497 36 91 93 info@boxmakelaardij.nl

"*" geeft vereiste velden aan

Dit veld is bedoeld voor validatiedoeleinden en moet niet worden gewijzigd.
    • *
      *
      *
    • *