Vragen of afspraak maken?

Stuur ons een bericht op Whatsapp

Bekijk onze bedrijfsvideo Volg ons (5900)
Reusel

Grotenekker 29

Omschrijving

Welkom aan de Grotenekker 29 te Reusel – een schitterend vrijstaand woonhuis dat tot in de puntjes is gerenoveerd. Deze woning combineert modern wooncomfort met een warme, stijlvolle uitstraling en is volledig klaar voor de toekomst. Dankzij 28 zonnepanelen, een zonneboiler, kunststof kozijnen met HR++ beglazing en vloerverwarming geniet je hier van een energiezuinig en duurzaam thuis. De vier ruime slaapkamers, het riante woongedeelte met moderne woonkeuken, de kantoorruimte en de separate speelkamer/hobbyruimte maken het een écht familiehuis. De fraai aangelegde, verrassend ruime achtertuin met meerdere bergruimtes, terrasoverkapping en volop privacy maakt het plaatje compleet.

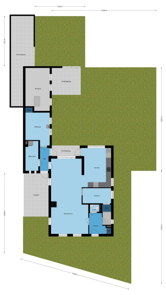
Begane grond

Entree
Bij binnenkomst valt direct het goede afwerkingsniveau op. De ruime entree is voorzien van een moderne tegelvloer met vloerverwarming, een volledig vernieuwde meterkast (12 groepen, 2x krachtstroom en glasvezelaansluiting), plaats voor een garderobe en een moderne toiletruimte met hangcloset, fonteintje en mechanische ventilatie.

Woonkamer
De woonkamer is royaal van opzet en baadt in het licht dankzij de grote schuifpui naar de achtertuin. De massief eiken vloer met vloerverwarming, strakke stucwerk wanden en plafonds met inbouwspots, en de sfeervolle gashaard creëren een warme en moderne leefruimte. Grenzend aan de woonkamer bevindt zich een kantoorruimte / speelkamer met verdiepte kelderkast – ideaal voor thuiswerken of een gezellige speelplek voor kinderen.

Keuken
De semi-open woonkeuken is een echte blikvanger: een houtlook keukeninrichting met composieten werkblad, inductiekookplaat, afzuigkap, combi stoomoven met magnetronfunctie, vaatwasser, koelkast en RVS spoelbak. De tegelvloer met vloerverwarming, de strakke stucwerk wanden en plafonds met inbouwspots zorgen weer voor een strakke afwerking. Vrijwel alle apparatuur is van het kwaliteitsmerk Siemens.

Portaal, bijkeuken en speelkamer
Via een portaal is toegang tot de praktische, geheel betegelde wasruimte met witgoedaansluitingen, bergruimte, plaats voor koel-vriescombinatie, een riante speelkamer en loopdeur naar carport. Van deze plek hebben de kinderen altijd al gedroomd! Een eigen plek waar ze heerlijk kunnen chillen van 14 m².

Eerste verdieping
Op de eerste verdieping bevinden zich drie ruime slaapkamers, allen voorzien van laminaatvloeren, strakke stucwerk wanden en plafonds, en kunststof draai-kiep kozijnen met vliegenhorren. De master bedroom aan de achterzijde is werkelijk een parel: prachtig aangebouwd, tot in de nok open, voorzien van een stijlvolle inbouwkast en een gevoel van ruimte en licht. De tweede en derde slaapkamer beschikken over handige opbergkasten onder de schuine kant.

Badkamer
De moderne badkamer is volledig betegeld en voorzien van vloerverwarming, een ruim ligbad, dubbele wastafel met meubel, inloopdouche met hand- en regendouche en inbouwkranen, designradiator, mechanische ventilatie en praktische bergruimte voor handdoeken. Door de dakkapel ontstaat er een prettige lichtinval.

Tweede verdieping
Via een vaste, middels schuifdeur afsluitbare, trap bereik je de tweede verdieping, waar zich een vierde slaapkamer bevindt met laminaatvloer, kasten onder de schuine kanten en een grote airco-unit (5kw, 2023) waarmee zowel de zolder als de eerste verdieping gekoeld kunnen worden.
Daarnaast is er een aparte CV-ruimte met de Nefit CV-installatie en zonneboiler (2011). Deze verdieping biedt tevens extra opbergruimte en kan desgewenst multifunctioneel worden ingericht.

Buitenruimte
De strak aangelegde achtertuin biedt optimale privacy dankzij de leibomen en is een waar paradijs voor liefhebbers van buitenleven. Geniet onder de overkapping met inbouwspots van lange zomeravonden met uitzicht op de sfeervolle koivijver. De tuin is voorzien van bestrating, gazon en vaste beplanting. Aan de rechterzijde tref je een eigen achtertom. Tevens zijn er twee grondwateraansluitingen en meerdere bergingen:

De eerste berging is in spouw gebouwd, voorzien van elektra, grondwaterpomp, filterinstallatie voor de vijver en een vlizotrap naar een ruime bergzolder.

Aan de achterzijde van het perceel bevindt zich nog een tweede royale berging met elektra, ideaal voor opslag of hobby’s.

Bijzonderheden
– Vrijstaand woonhuis, volledig gerenoveerd
– 28 zonnepanelen en zonneboiler t.b.v. warm water
– Volledig geïsoleerd en voorzien van kunststof kozijnen met HR++ beglazing
– Begane grond vloer opnieuw geïsoleerd (10cm) en voorzien van vloerverwarming (hoofdverwarming)
– Dak woonhuis extra na-geïsoleerd en dak aanbouw voorzien van geïsoleerde dakplaten
– Moderne badkamer met vloerverwarming
– CV-installatie (Nefit, 2011)
– Energiezuinig en klaar voor de toekomst
– Voorzien van airconditioning (5kw, 2023)
– Luxe afwerking met strak stucwerk, eiken vloeren, keramische tegels en inbouwspots
– Riante tuin met overkapping, vijver en meerdere bergingen
– Gelegen in een rustige, kindvriendelijke wijk nabij voorzieningen

Kenmerken

  • Woonoppervlakte: 150 m2
  • Perceeloppervlakte: 434 m2
  • Slaapkamers: 4 kamers
  • Bouwjaar: 1984

Kenmerken

Overdracht

  • Woonoppervlakte: 150 m2
  • Perceeloppervlakte: 434 m2
  • Inhoud: 675 m3
  • Status: Verkocht
  • Energielabel: B

Bouw

  • Ligging: In woonwijk, , ,
  • Kamers: 8
  • Slaapkamers: 4 kamers
  • Soort woning: Eengezinswoning
  • Type: Vrijstaande woning
  • Type dak: Zadeldak

Omschrijving

Welkom aan de Grotenekker 29 te Reusel – een schitterend vrijstaand woonhuis dat tot in de puntjes is gerenoveerd. Deze woning combineert modern wooncomfort met een warme, stijlvolle uitstraling en is volledig klaar voor de toekomst. Dankzij 28 zonnepanelen, een zonneboiler, kunststof kozijnen met HR++ beglazing en vloerverwarming geniet je hier van een energiezuinig en duurzaam thuis. De vier ruime slaapkamers, het riante woongedeelte met moderne woonkeuken, de kantoorruimte en de separate speelkamer/hobbyruimte maken het een écht familiehuis. De fraai aangelegde, verrassend ruime achtertuin met meerdere bergruimtes, terrasoverkapping en volop privacy maakt het plaatje compleet.

Begane grond

Entree
Bij binnenkomst valt direct het goede afwerkingsniveau op. De ruime entree is voorzien van een moderne tegelvloer met vloerverwarming, een volledig vernieuwde meterkast (12 groepen, 2x krachtstroom en glasvezelaansluiting), plaats voor een garderobe en een moderne toiletruimte met hangcloset, fonteintje en mechanische ventilatie.

Woonkamer
De woonkamer is royaal van opzet en baadt in het licht dankzij de grote schuifpui naar de achtertuin. De massief eiken vloer met vloerverwarming, strakke stucwerk wanden en plafonds met inbouwspots, en de sfeervolle gashaard creëren een warme en moderne leefruimte. Grenzend aan de woonkamer bevindt zich een kantoorruimte / speelkamer met verdiepte kelderkast – ideaal voor thuiswerken of een gezellige speelplek voor kinderen.

Keuken
De semi-open woonkeuken is een echte blikvanger: een houtlook keukeninrichting met composieten werkblad, inductiekookplaat, afzuigkap, combi stoomoven met magnetronfunctie, vaatwasser, koelkast en RVS spoelbak. De tegelvloer met vloerverwarming, de strakke stucwerk wanden en plafonds met inbouwspots zorgen weer voor een strakke afwerking. Vrijwel alle apparatuur is van het kwaliteitsmerk Siemens.

Portaal, bijkeuken en speelkamer
Via een portaal is toegang tot de praktische, geheel betegelde wasruimte met witgoedaansluitingen, bergruimte, plaats voor koel-vriescombinatie, een riante speelkamer en loopdeur naar carport. Van deze plek hebben de kinderen altijd al gedroomd! Een eigen plek waar ze heerlijk kunnen chillen van 14 m².

Eerste verdieping
Op de eerste verdieping bevinden zich drie ruime slaapkamers, allen voorzien van laminaatvloeren, strakke stucwerk wanden en plafonds, en kunststof draai-kiep kozijnen met vliegenhorren. De master bedroom aan de achterzijde is werkelijk een parel: prachtig aangebouwd, tot in de nok open, voorzien van een stijlvolle inbouwkast en een gevoel van ruimte en licht. De tweede en derde slaapkamer beschikken over handige opbergkasten onder de schuine kant.

Badkamer
De moderne badkamer is volledig betegeld en voorzien van vloerverwarming, een ruim ligbad, dubbele wastafel met meubel, inloopdouche met hand- en regendouche en inbouwkranen, designradiator, mechanische ventilatie en praktische bergruimte voor handdoeken. Door de dakkapel ontstaat er een prettige lichtinval.

Tweede verdieping
Via een vaste, middels schuifdeur afsluitbare, trap bereik je de tweede verdieping, waar zich een vierde slaapkamer bevindt met laminaatvloer, kasten onder de schuine kanten en een grote airco-unit (5kw, 2023) waarmee zowel de zolder als de eerste verdieping gekoeld kunnen worden.
Daarnaast is er een aparte CV-ruimte met de Nefit CV-installatie en zonneboiler (2011). Deze verdieping biedt tevens extra opbergruimte en kan desgewenst multifunctioneel worden ingericht.

Buitenruimte
De strak aangelegde achtertuin biedt optimale privacy dankzij de leibomen en is een waar paradijs voor liefhebbers van buitenleven. Geniet onder de overkapping met inbouwspots van lange zomeravonden met uitzicht op de sfeervolle koivijver. De tuin is voorzien van bestrating, gazon en vaste beplanting. Aan de rechterzijde tref je een eigen achtertom. Tevens zijn er twee grondwateraansluitingen en meerdere bergingen:

De eerste berging is in spouw gebouwd, voorzien van elektra, grondwaterpomp, filterinstallatie voor de vijver en een vlizotrap naar een ruime bergzolder.

Aan de achterzijde van het perceel bevindt zich nog een tweede royale berging met elektra, ideaal voor opslag of hobby’s.

Bijzonderheden
– Vrijstaand woonhuis, volledig gerenoveerd
– 28 zonnepanelen en zonneboiler t.b.v. warm water
– Volledig geïsoleerd en voorzien van kunststof kozijnen met HR++ beglazing
– Begane grond vloer opnieuw geïsoleerd (10cm) en voorzien van vloerverwarming (hoofdverwarming)
– Dak woonhuis extra na-geïsoleerd en dak aanbouw voorzien van geïsoleerde dakplaten
– Moderne badkamer met vloerverwarming
– CV-installatie (Nefit, 2011)
– Energiezuinig en klaar voor de toekomst
– Voorzien van airconditioning (5kw, 2023)
– Luxe afwerking met strak stucwerk, eiken vloeren, keramische tegels en inbouwspots
– Riante tuin met overkapping, vijver en meerdere bergingen
– Gelegen in een rustige, kindvriendelijke wijk nabij voorzieningen

Contact

Neem contact met ons op

0497 36 91 93 info@boxmakelaardij.nl

"*" geeft vereiste velden aan

Dit veld is bedoeld voor validatiedoeleinden en moet niet worden gewijzigd.
    • *
      *
      *
    • *