Vragen of afspraak maken?

Stuur ons een bericht op Whatsapp

Bekijk onze bedrijfsvideo Volg ons (5900)
Bergeijk

Kerkpad 8

€ 695.000 k.k.

Omschrijving

Statig en royaal vrijstaand herenhuis uit 2017 met een indrukwekkende uitstraling, ruime leefvertrekken en een moderne afwerking. Volledig geïsoleerd, voorzien van HR++ beglazing en vloerverwarming over de gehele begane grond, wat zorgt voor optimaal comfort en een energielabel A. Binnen tref je een heerlijk ruim woongedeelte op de begane grond, op de eerste verdieping 3 ruime slaapkamers en een keurige badkamer en de zolderverdieping is verrassend ruim waardoor je hier eenvoudig 2 grote slaapkamers creëert. Een woning met karakter en inhoud, gelegen op een vrije locatie met uitzicht over de sportvelden in Bergeijk, waar ruimte, comfort en duurzaamheid perfect samenkomen.

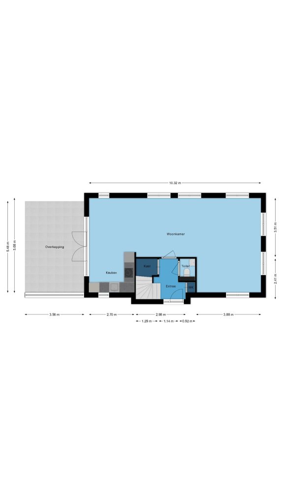
Begane grond

Entree
Dit vrijstaande herenhuis maakt direct indruk met zijn uitstraling en bouwkwaliteit. Via de ruime oprit bereik je de entree. De gehele begane grond is afgewerkt met een keramische tegelvloer met vloerverwarming, strak afgewerkte wanden en spuitwerk plafonds. In de hal vind je de meterkast met acht groepen, fornuisgroep en glasvezel, een praktische trapkast en de toiletruimte met hangcloset en fonteintje.

Woonkamer
De woonkamer is royaal en rondom voorzien van grote raampartijen met elektrische zonnescreens. Het zitgedeelte aan de voorzijde biedt vrij uitzicht over het straatbeeld en de sportvelden. Het eetgedeelte is ruim opgezet en biedt moeiteloos plaats aan een acht-persoons eettafel. Via openslaande tuindeuren sta je direct in verbinding met het overdekte terras en de tuin.

Keuken
De open keuken is uitgevoerd in een hoekopstelling met een composieten werkblad. De keuken is voorzien van hoogwaardige apparatuur van Siemens en Atag, waaronder een combi oven, een XXL koelkast, een RVS spoelbak, een vaatwasser en een stijlvolle Atag inductiekookplaat met wokbrander en afzuigkap. Een complete en praktische keuken die past bij de uitstraling van de woning.

Eerste verdieping
Via de hardhouten trap bereik je de eerste verdieping. Deze verdieping is afgewerkt met een hoogwaardige kurkvloer met krasbestendige toplaag, strak afgewerkte wanden en spuitwerk plafonds. Hier bevinden zich drie zeer ruime slaapkamers. De master bedroom ligt aan de koele noordzijde en is royaal van opzet. De andere twee slaapkamers zijn eveneens ruim en voorzien van elektrische zonnescreens.

Badkamer
De badkamer is volledig betegeld en netjes afgewerkt. Je beschikt hier over een inloopdouche, een dubbel wastafelmeubel, een hangcloset, een radiator en zowel mechanische als natuurlijke ventilatie.

Tweede verdieping
Via een vaste trap bereik je de zeer ruime zolderverdieping. Door de hoogte en het vloeroppervlak is dit een indrukwekkende ruimte waar eenvoudig twee extra slaapkamers of een werkruimte gerealiseerd kunnen worden. Hier bevinden zich tevens de Cv installatie van Intergas uit 2017, de Duco ventilatie unit en de witgoedaansluitingen.

Tuin en buitenruimte
De tuin is keurig aangelegd met gazon en vaste beplanting en biedt veel privacy dankzij de omheining met beukenhaag. Het grote overdekte terras met inbouwspots maakt het mogelijk om een groot deel van het jaar buiten te zitten.

Vanuit de tuin heb je toegang tot de garage met elektra en een handmatige deur. Aansluitend bevindt zich een riante Douglas carport. Aan de voorzijde beschikt de woning over een oprit met ruimte voor drie auto’s en vrij uitzicht over de sportvelden.

Bijzonderheden
• Vrijstaand herenhuis gebouwd in 2017
• Energielabel A
• Volledig geïsoleerd en voorzien van HR++ beglazing
• Vloerverwarming over de gehele begane grond
• Royale woonkamer met veel raampartijen en elektrische zonnescreens
• Grote open keuken met apparatuur van Siemens en Atag
• Drie zeer ruime slaapkamers (mogelijkheid tot 5)
• Mogelijkheid tot realiseren van twee extra slaapkamers op zolder
• Hoogwaardige kurkvloer op de eerste verdieping
• Ruime zolder met vaste trap
• Oprit voor drie auto’s
• Garage en riante Douglas carport
• Groot overdekt terras met inbouwspots
• Vrij uitzicht over de sportvelden
• Gelegen in een rustige en ruim opgezette woonomgeving in Bergeijk

Kenmerken

  • Woonoppervlakte: 162 m2
  • Perceeloppervlakte: 413 m2
  • Slaapkamers: 4 kamers
  • Bouwjaar: 2017

Plattegrond (5)

Kenmerken

Overdracht

  • Vraagprijs: € 695.000 k.k.
  • Woonoppervlakte: 162 m2
  • Perceeloppervlakte: 413 m2
  • Inhoud: 613 m3
  • Status: Te koop
  • Energielabel: A

Bouw

  • Ligging: In woonwijk, Vrij uitzicht, ,
  • Kamers: 6
  • Slaapkamers: 4 kamers
  • Soort woning: Eengezinswoning
  • Type: Vrijstaande woning
  • Type dak: Zadeldak

Omschrijving

Statig en royaal vrijstaand herenhuis uit 2017 met een indrukwekkende uitstraling, ruime leefvertrekken en een moderne afwerking. Volledig geïsoleerd, voorzien van HR++ beglazing en vloerverwarming over de gehele begane grond, wat zorgt voor optimaal comfort en een energielabel A. Binnen tref je een heerlijk ruim woongedeelte op de begane grond, op de eerste verdieping 3 ruime slaapkamers en een keurige badkamer en de zolderverdieping is verrassend ruim waardoor je hier eenvoudig 2 grote slaapkamers creëert. Een woning met karakter en inhoud, gelegen op een vrije locatie met uitzicht over de sportvelden in Bergeijk, waar ruimte, comfort en duurzaamheid perfect samenkomen.

Begane grond

Entree
Dit vrijstaande herenhuis maakt direct indruk met zijn uitstraling en bouwkwaliteit. Via de ruime oprit bereik je de entree. De gehele begane grond is afgewerkt met een keramische tegelvloer met vloerverwarming, strak afgewerkte wanden en spuitwerk plafonds. In de hal vind je de meterkast met acht groepen, fornuisgroep en glasvezel, een praktische trapkast en de toiletruimte met hangcloset en fonteintje.

Woonkamer
De woonkamer is royaal en rondom voorzien van grote raampartijen met elektrische zonnescreens. Het zitgedeelte aan de voorzijde biedt vrij uitzicht over het straatbeeld en de sportvelden. Het eetgedeelte is ruim opgezet en biedt moeiteloos plaats aan een acht-persoons eettafel. Via openslaande tuindeuren sta je direct in verbinding met het overdekte terras en de tuin.

Keuken
De open keuken is uitgevoerd in een hoekopstelling met een composieten werkblad. De keuken is voorzien van hoogwaardige apparatuur van Siemens en Atag, waaronder een combi oven, een XXL koelkast, een RVS spoelbak, een vaatwasser en een stijlvolle Atag inductiekookplaat met wokbrander en afzuigkap. Een complete en praktische keuken die past bij de uitstraling van de woning.

Eerste verdieping
Via de hardhouten trap bereik je de eerste verdieping. Deze verdieping is afgewerkt met een hoogwaardige kurkvloer met krasbestendige toplaag, strak afgewerkte wanden en spuitwerk plafonds. Hier bevinden zich drie zeer ruime slaapkamers. De master bedroom ligt aan de koele noordzijde en is royaal van opzet. De andere twee slaapkamers zijn eveneens ruim en voorzien van elektrische zonnescreens.

Badkamer
De badkamer is volledig betegeld en netjes afgewerkt. Je beschikt hier over een inloopdouche, een dubbel wastafelmeubel, een hangcloset, een radiator en zowel mechanische als natuurlijke ventilatie.

Tweede verdieping
Via een vaste trap bereik je de zeer ruime zolderverdieping. Door de hoogte en het vloeroppervlak is dit een indrukwekkende ruimte waar eenvoudig twee extra slaapkamers of een werkruimte gerealiseerd kunnen worden. Hier bevinden zich tevens de Cv installatie van Intergas uit 2017, de Duco ventilatie unit en de witgoedaansluitingen.

Tuin en buitenruimte
De tuin is keurig aangelegd met gazon en vaste beplanting en biedt veel privacy dankzij de omheining met beukenhaag. Het grote overdekte terras met inbouwspots maakt het mogelijk om een groot deel van het jaar buiten te zitten.

Vanuit de tuin heb je toegang tot de garage met elektra en een handmatige deur. Aansluitend bevindt zich een riante Douglas carport. Aan de voorzijde beschikt de woning over een oprit met ruimte voor drie auto’s en vrij uitzicht over de sportvelden.

Bijzonderheden
• Vrijstaand herenhuis gebouwd in 2017
• Energielabel A
• Volledig geïsoleerd en voorzien van HR++ beglazing
• Vloerverwarming over de gehele begane grond
• Royale woonkamer met veel raampartijen en elektrische zonnescreens
• Grote open keuken met apparatuur van Siemens en Atag
• Drie zeer ruime slaapkamers (mogelijkheid tot 5)
• Mogelijkheid tot realiseren van twee extra slaapkamers op zolder
• Hoogwaardige kurkvloer op de eerste verdieping
• Ruime zolder met vaste trap
• Oprit voor drie auto’s
• Garage en riante Douglas carport
• Groot overdekt terras met inbouwspots
• Vrij uitzicht over de sportvelden
• Gelegen in een rustige en ruim opgezette woonomgeving in Bergeijk

Documenten

Selecteer onderstaande documenten om ze te downloaden

Contact

Neem contact met ons op

0497 36 91 93 info@boxmakelaardij.nl

"*" geeft vereiste velden aan

Dit veld is bedoeld voor validatiedoeleinden en moet niet worden gewijzigd.
*
*
*
*