Tongerlolaan 29
Omschrijving
Op een fraai perceel van bijna 1.400 m² aan de rand van Hapert ligt dit prachtige vrijstaande landhuis met maar liefst 526 m² gebruiksoppervlakte! Deze grotendeels onderkelderde woning beschikt onder andere over een zeer riante living van 100 m², een dubbele inpandige garage, 6 à 7 slaapkamers en 4 badkamers. Via het royale souterrain – wat momenteel als mancave in gebruik is – komt u bij het vrijstaande poulehouse met zwembad. Dit ruim opgezette bijgebouw is multifunctioneel te gebruiken en kan bijvoorbeeld ook worden verbouwd tot mantelzorgwoning, Bed & Breakfast of kantoor/praktijkruimte.
Indeling:
Begane grond:
Via een prachtige, met natuursteen omlijste voordeur komt u in de grote entreehal met ruimtelijke vide. De hal is voorzien van een tegelvloer, toiletruimte met lambrisering en fonteintje, vernieuwde meterkast (met ruim voldoende groepen, aardlekschakelaars en glasvezelaansluiting) en garderobenis. Vanuit de hal is er toegang tot de woonkamer en middels een hardhouten trapopopgang bereikt u de 1e verdieping.
Prachtige, sfeervolle living met een tegelvloer, stucwerkwanden, houten sierplafond en stucwerkplafond met inbouwspots ter plaatse van de tuinkamer. De gashaard in de woonkamer en houtkachel in de tuinkamer zorgen voor een prettige sfeerverwarming en grote raampartijen creëren een aangename lichtinval. De living biedt tevens toegang tot het souterrain.
Dichte leefkeuken met tegelvloer en een neutrale keukeninrichting in hoekopstelling voorzien van een keramische kookplaat, frituur, afzuigkap, oven, magnetron, koelkast, vriezer, vaatwasser, 1½ spoelbak en een granieten aanrechtblad.
Bijkeuken met een tegelvloer, handige voorraadkast, 3-deurs kastenwand, uitstortgootsteen, wasmachine-aansluiting en deur met toegang tot de achtertuin.
Volledig betegelde badkamer voorzien van een douche, toilet en wastafel.
De dubbele inpandige garage is vanuit de bijkeuken te bereiken en is voorzien van een tegelvloer en 2 stalen kanteldeuren, waarvan 1 elektrisch bedienbaar is.
1e verdieping:
Middels de hardhouten trapopgang bereikt u de 1e verdieping met een zeer riante overloop welke is voorzien van vloerbedekking, 2 inloopkasten en een trapkast. De overloop biedt toegang tot maar liefst 5 slaapkamers, 2 badkamers en een afsluitbare vaste trapopgang naar de 2e verdieping.
Prachtige masterbedroom met vloerbedekking, stucwerk- en behangwanden, stucwerkplafond met sierlijst en rechtstreekse doorgang naar de grote inloopgarderobe met gashaard en open kastenwand.
Zeer riante, direct aan de masterbedroom aansluitende badkamer-en-suite met een douchecabine, ligbad, toilet, 2 wastafels en een stucwerkplafond met inbouwspots en sierlijst.
Grote 2e slaapkamer met een vinylvloer, wanden met lambrisering en stucwerk, stucwerkplafond met sierlijst en 2 vaste bedden.
Slaapkamer 3, 4 en 5 betreffen keurige kinderslaapkamers voorzien van een vinylvloer, stucwerkwanden en een stucwerk- of schrotenplafond.
Volledig betegelde 3e badkamer voorzien van een douchecabine, wandcloset en wastafel.
2e verdieping:
Middels een vaste trapopgang bereikt u een grote overloop met een vinylvloer, 5 ingebouwde kasten en doorgang naar een bergzolder.
Grote 6e slaapkamer met een vinylvloer, stucwerkwanden, licht schrotenplafond, dakraam en een wastafel.
Hobbykamer met behangwanden en toegang tot een c.v.-ruimte met opstelling van de c.v.-installatie. Door het plaatsen van een dakraam of dakkapel kan dit de 7e slaapkamers worden. Nu mag deze kamer niet als slaapkamer worden benoemd door het ontbreken van daglichttoetreding.
Souterrain:
Het souterrain (nu in gebruik als mancave) is bereikbaar vanuit de woonkamer en is voorzien van een tegelvloer, schoonmetselwerkwanden en een houten plafond. In deze ruimte is een robuuste bar aanwezig, alsook een separate pokerkamer met een handige trapkast. Via een gang is er middels een trapopgang toegang tot het achterin de tuin gesitueerde poolhouse. Deze gang is tevens voorzien van een kastenwand en een saunaruimte.
Poolhouse:
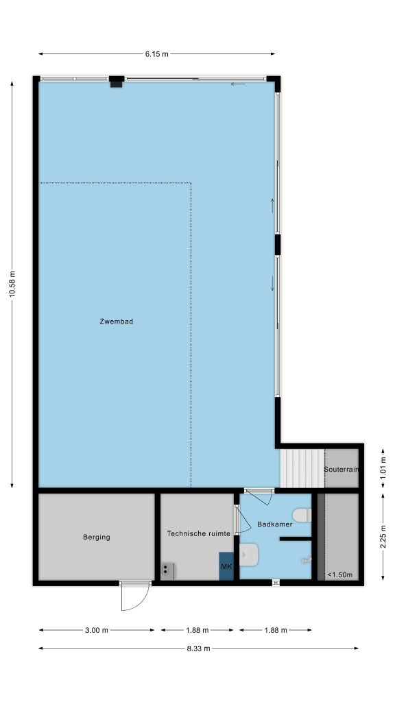
Vrijstaand poolhouse voorzien van een zwembad, 3 schuifpuien met toegang tot de achtertuin, technische ruimte en volledig betegelde badkamer met een douche, wastafel en wandcloset. Dit bijgebouw is multifunctioneel te gebruiken en kan bijvoorbeeld ook worden verbouwd tot mantelzorgwoning, Bed & Breakfast of kantoor/praktijkruimte.
Exterieur:
Op het zonnige zuiden gesitueerde, privacy biedende achtertuin met diverse beplanting, meerdere terrassen, moestuin, kippenren en achterom met poort. Vanuit de tuin is tevens een in het poolhouse gesitueerde berging te bereiken.
De riante, eveneens privacy biedende voortuin is omheind middels een hoge haag en voorzien van een groot gazon en diverse volwassen bomen.
Algemeen:
– bouwjaar 1978.
– perceeloppervlakte 1.346 m².
– inhoud 1.807 m³.
– gebruiksoppervlakte wonen 526 m².
– overige inpandige ruimte 46 m².
– de woning is voorzien van dak-, spouwmuur- en vloerisolatie.
– de woning is voorzien van moderne kunststof kozijnen met HR++ beglazing, alsmede houten en stalen kozijnen met dubbel glas.
– verwarming door middel van een Nefit c.v.-ketel (bouwjaar 1998). Warmwatervoorziening door middel van een Bosch boiler.
– de tuinkamer is voorzien van vloerverwarming.
– het betreft hier een unieke woning met enorm veel gebruiksoppervlakte en daardoor ook talloze gebruiksmogelijkheden biedt. Slechts een bezichtiging kan u een juiste indruk verschaffen van deze bijzondere woning.
– fijne ligging aan een verkeersarme ventweg met volop openbaar groen. De woning is gelegen nabij de uitvalswegen Provincialeweg N284 en autosnelweg A67 waardoor onder andere ASML, High Tech Campus Maxima Medisch Centrum en Eindhoven Airport uitstekend bereikbaar zijn.
Kenmerken
- Woonoppervlakte: 526 m2
- Perceeloppervlakte: 1346 m2
- Slaapkamers: 1 kamer
- Bouwjaar: 1978
Kenmerken
Overdracht
- Woonoppervlakte: 526 m2
- Perceeloppervlakte: 1346 m2
- Inhoud: 1807 m3
- Status: Verkocht
- Energielabel: C
Bouw
- Ligging: In woonwijk, , ,
- Kamers: 7
- Slaapkamers: 1 kamer
- Soort woning: Landhuis
- Type: Vrijstaande woning
- Type dak: Zadeldak
Omschrijving
Op een fraai perceel van bijna 1.400 m² aan de rand van Hapert ligt dit prachtige vrijstaande landhuis met maar liefst 526 m² gebruiksoppervlakte! Deze grotendeels onderkelderde woning beschikt onder andere over een zeer riante living van 100 m², een dubbele inpandige garage, 6 à 7 slaapkamers en 4 badkamers. Via het royale souterrain – wat momenteel als mancave in gebruik is – komt u bij het vrijstaande poulehouse met zwembad. Dit ruim opgezette bijgebouw is multifunctioneel te gebruiken en kan bijvoorbeeld ook worden verbouwd tot mantelzorgwoning, Bed & Breakfast of kantoor/praktijkruimte.
Indeling:
Begane grond:
Via een prachtige, met natuursteen omlijste voordeur komt u in de grote entreehal met ruimtelijke vide. De hal is voorzien van een tegelvloer, toiletruimte met lambrisering en fonteintje, vernieuwde meterkast (met ruim voldoende groepen, aardlekschakelaars en glasvezelaansluiting) en garderobenis. Vanuit de hal is er toegang tot de woonkamer en middels een hardhouten trapopopgang bereikt u de 1e verdieping.
Prachtige, sfeervolle living met een tegelvloer, stucwerkwanden, houten sierplafond en stucwerkplafond met inbouwspots ter plaatse van de tuinkamer. De gashaard in de woonkamer en houtkachel in de tuinkamer zorgen voor een prettige sfeerverwarming en grote raampartijen creëren een aangename lichtinval. De living biedt tevens toegang tot het souterrain.
Dichte leefkeuken met tegelvloer en een neutrale keukeninrichting in hoekopstelling voorzien van een keramische kookplaat, frituur, afzuigkap, oven, magnetron, koelkast, vriezer, vaatwasser, 1½ spoelbak en een granieten aanrechtblad.
Bijkeuken met een tegelvloer, handige voorraadkast, 3-deurs kastenwand, uitstortgootsteen, wasmachine-aansluiting en deur met toegang tot de achtertuin.
Volledig betegelde badkamer voorzien van een douche, toilet en wastafel.
De dubbele inpandige garage is vanuit de bijkeuken te bereiken en is voorzien van een tegelvloer en 2 stalen kanteldeuren, waarvan 1 elektrisch bedienbaar is.
1e verdieping:
Middels de hardhouten trapopgang bereikt u de 1e verdieping met een zeer riante overloop welke is voorzien van vloerbedekking, 2 inloopkasten en een trapkast. De overloop biedt toegang tot maar liefst 5 slaapkamers, 2 badkamers en een afsluitbare vaste trapopgang naar de 2e verdieping.
Prachtige masterbedroom met vloerbedekking, stucwerk- en behangwanden, stucwerkplafond met sierlijst en rechtstreekse doorgang naar de grote inloopgarderobe met gashaard en open kastenwand.
Zeer riante, direct aan de masterbedroom aansluitende badkamer-en-suite met een douchecabine, ligbad, toilet, 2 wastafels en een stucwerkplafond met inbouwspots en sierlijst.
Grote 2e slaapkamer met een vinylvloer, wanden met lambrisering en stucwerk, stucwerkplafond met sierlijst en 2 vaste bedden.
Slaapkamer 3, 4 en 5 betreffen keurige kinderslaapkamers voorzien van een vinylvloer, stucwerkwanden en een stucwerk- of schrotenplafond.
Volledig betegelde 3e badkamer voorzien van een douchecabine, wandcloset en wastafel.
2e verdieping:
Middels een vaste trapopgang bereikt u een grote overloop met een vinylvloer, 5 ingebouwde kasten en doorgang naar een bergzolder.
Grote 6e slaapkamer met een vinylvloer, stucwerkwanden, licht schrotenplafond, dakraam en een wastafel.
Hobbykamer met behangwanden en toegang tot een c.v.-ruimte met opstelling van de c.v.-installatie. Door het plaatsen van een dakraam of dakkapel kan dit de 7e slaapkamers worden. Nu mag deze kamer niet als slaapkamer worden benoemd door het ontbreken van daglichttoetreding.
Souterrain:
Het souterrain (nu in gebruik als mancave) is bereikbaar vanuit de woonkamer en is voorzien van een tegelvloer, schoonmetselwerkwanden en een houten plafond. In deze ruimte is een robuuste bar aanwezig, alsook een separate pokerkamer met een handige trapkast. Via een gang is er middels een trapopgang toegang tot het achterin de tuin gesitueerde poolhouse. Deze gang is tevens voorzien van een kastenwand en een saunaruimte.
Poolhouse:
Vrijstaand poolhouse voorzien van een zwembad, 3 schuifpuien met toegang tot de achtertuin, technische ruimte en volledig betegelde badkamer met een douche, wastafel en wandcloset. Dit bijgebouw is multifunctioneel te gebruiken en kan bijvoorbeeld ook worden verbouwd tot mantelzorgwoning, Bed & Breakfast of kantoor/praktijkruimte.
Exterieur:
Op het zonnige zuiden gesitueerde, privacy biedende achtertuin met diverse beplanting, meerdere terrassen, moestuin, kippenren en achterom met poort. Vanuit de tuin is tevens een in het poolhouse gesitueerde berging te bereiken.
De riante, eveneens privacy biedende voortuin is omheind middels een hoge haag en voorzien van een groot gazon en diverse volwassen bomen.
Algemeen:
– bouwjaar 1978.
– perceeloppervlakte 1.346 m².
– inhoud 1.807 m³.
– gebruiksoppervlakte wonen 526 m².
– overige inpandige ruimte 46 m².
– de woning is voorzien van dak-, spouwmuur- en vloerisolatie.
– de woning is voorzien van moderne kunststof kozijnen met HR++ beglazing, alsmede houten en stalen kozijnen met dubbel glas.
– verwarming door middel van een Nefit c.v.-ketel (bouwjaar 1998). Warmwatervoorziening door middel van een Bosch boiler.
– de tuinkamer is voorzien van vloerverwarming.
– het betreft hier een unieke woning met enorm veel gebruiksoppervlakte en daardoor ook talloze gebruiksmogelijkheden biedt. Slechts een bezichtiging kan u een juiste indruk verschaffen van deze bijzondere woning.
– fijne ligging aan een verkeersarme ventweg met volop openbaar groen. De woning is gelegen nabij de uitvalswegen Provincialeweg N284 en autosnelweg A67 waardoor onder andere ASML, High Tech Campus Maxima Medisch Centrum en Eindhoven Airport uitstekend bereikbaar zijn.